1. Home
  2. Search Listings
  3. 17375 Thunder Rd Jupiter, FL - 33478
  • MLS® #: RX-11149784
  • 17375 Thunder Rd
  • Jupiter, FL 33478
  • $1,895,000
  • 4 Beds, 4 Bath, 2,486 SqFt
  • Residential

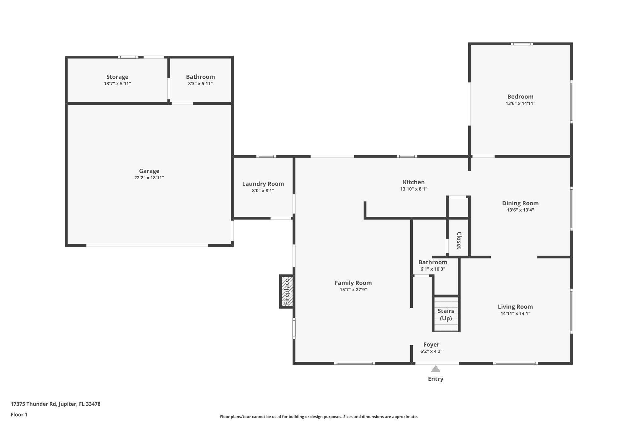
Experience the best of Florida living in this beautifully renovated two story home located in Jupiter Farms on a fully fenced and private 2.5 acre lot at the end of a quiet street. The residence offers four bedrooms, three and a half bathrooms, and a two car garage, with the fourth bedroom currently configured as a first floor den that could easily become a true bedroom by adding a closet. With no lakes and no HOA restrictions, this property delivers true peace, privacy, and freedom, along with plenty of room to expand the home in the future. Enjoy tranquil mornings and starlit evenings from the expansive wrap around front porch surrounded by nature.Thoughtfully renovated in 2025 with quality and efficiency in mind, the home features a new metal roof, new gutters, and impact windowsand sliding doors with UV protection that flood the interior with natural light. A private well paired with a new reverse osmosis system provides clean and reliable water throughout. Inside, the spacious layout includes two large living rooms, a formal dining room, and a modern kitchen complete with a dual cast iron sink, brand new premium appliances, and a generous pantry. The first floor also includes the den or fourth bedroom, a half bath, and a fully enclosed laundry room. Upstairs, the primary suite is spacious and serene, offering double walk in closets and a large bathroom with a double vanity smart mirror with WIFI and a glass enclosed walk in shower. Two additional bedrooms provide ample closet space and share a well appointed bathroom with a smart mirror that included WIFI, a walk in shower. The attached two car garage adds incredible flexibility and includes a full bathroom with a private entrance, making it ideal for a future cabana bath, guest use, or poolside convenience. Additional attic storage enhances the home's functionality. Outdoor living is equally impressive with a screened in back patio, an outdoor playground, and an outdoor shower, making this home perfect for entertaining, relaxing, or fully embracing the Jupiter Farms lifestyle. Ideally located on the east side of Jupiter Farms, this home allows you to walk or bike to Jupiter Farms Park and Riverbend. You are just minutes from town center shopping and dining, top rated schools, I 95, the Florida Turnpike, and Jupiter's beautiful beaches.

View Virtual Tour

Essential Information

  • MLS® #RX-11149784
  • Price$1,895,000
  • Bedrooms4
  • Bathrooms4.00
  • Full Baths3
  • Half Baths1
  • Square Footage2,486
  • Year Built1977
  • TypeResidential
  • Sub-TypeSingle Family Detached
  • StyleGeorgian, Plantation
  • StatusActive

Community Information

  • Address17375 Thunder Rd
  • Area5040
  • SubdivisionJupiter Farms
  • CityJupiter
  • CountyPalm Beach
  • StateFL
  • Zip Code33478

Amenities

  • # of Garages2
  • WaterfrontNone

Amenities

Park, Picnic Area, Sidewalks, Horse Trails, Horses Permitted

Utilities

Cable, 3-Phase Electric, Septic, Well Water

Parking

Drive - Circular, Driveway, Garage - Attached, Garage - Detached

Interior

  • HeatingCentral, Electric
  • CoolingCentral, Electric
  • FireplaceYes
  • # of Stories2
  • Stories2.00

Interior Features

Decorative Fireplace, Entry Lvl Lvng Area, Pantry, Walk-in Closet

Appliances

Dishwasher, Disposal, Dryer, Microwave, Range - Electric, Refrigerator, Washer, Water Heater - Elec, Water Softener-Owned, Reverse Osmosis Water Treatment

Exterior

  • Lot Description2 to < 3 Acres
  • RoofMetal
  • ConstructionFrame, Woodside

Exterior Features

Covered Patio, Screened Patio, Open Porch

School Information

  • MiddleWatson B. Duncan Middle School
  • HighJupiter High School

Additional Information

  • Date ListedDecember 26th, 2025
  • Days on Website22
  • ZoningAR
  • Office: One Sotheby's International Re

Property Location

Please provide a valid email address.

17375 Thunder Rd on www.jupiterabacoahomes.uswww.jupiterabacoahomes.us

Offered at the current list price of $1,895,000, this home for sale at 17375 Thunder Rd features 4 bedrooms and 4 bathrooms. This real estate listing is located in Jupiter Farms of Jupiter, FL 33478 and is approximately 2,486 square feet. 17375 Thunder Rd is listed under the MLS ID of RX-11149784 and has been available through www.jupiterabacoahomes.uswww.jupiterabacoahomes.us for the Jupiter real estate market for 22 days.

Facts About Jupiter, FL

If you're looking for an exploration adventure in Jupiter, check out the Jupiter Inlet Lighthouse. The Lighthouse was designed by Civil War hero General George Meade and is operated by the Coast Guard since 1860. Tours of this 105-foot-tall landmark unfold every half hour. There is a small museum that tells about efforts to restore the lighthouse to the way it looked from 1860 to 1918.

One of the draws to Jupiter, FL is the beach. Carlin Park is located in Jupiter and has picnic pavilions, hiking trails, a baseball diamond, a playground, six tennis courts, and fishing sites.

The Jupiter River and the Loxahatchee basin was used by British aviators as a training area for small see planes during the winter of 1916-1917.

Similar Listings to 17375 Thunder Rd

Photo of Listing #RX-11108521
  • MLS® #: RX-11108521
  • 210 Sonata Dr
  • Jupiter, FL 33478
  • $2,000,000
  • 4 Bed, 4 Bath, 3,118 SqFt
  • Residential
Add as Favorite
Photo of Listing #RX-11128759
  • MLS® #: RX-11128759
  • 10767 153rd Ct N
  • Jupiter, FL 33478
  • $1,799,000
  • 4 Bed, 4 Bath, 2,931 SqFt
  • Residential
Add as Favorite
Photo of Listing #RX-11128912
  • MLS® #: RX-11128912
  • 12275 185th St N
  • Jupiter, FL 33478
  • $2,075,000
  • 3 Bed, 2 Bath, 2,583 SqFt
  • Residential
Add as Favorite
Photo of Listing #RX-11137550
  • MLS® #: RX-11137550
  • 236 Carina Dr
  • Jupiter, FL 33478
  • $1,749,000
  • 3 Bed, 3 Bath, 2,621 SqFt
  • Residential
Add as Favorite

All listings featuring the BMLS logo are provided by Beaches MLS Inc. Copyright 2026 Beaches MLS. This information is not verified for authenticity or accuracy and is not guaranteed.
© 2026 Beaches Multiple Listing Service, Inc. All rights reserved.

Listing information last updated on January 17th, 2026 at 4:15am CST.