1. Home
  2. Search Listings
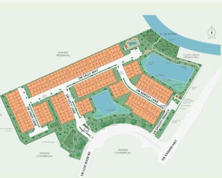
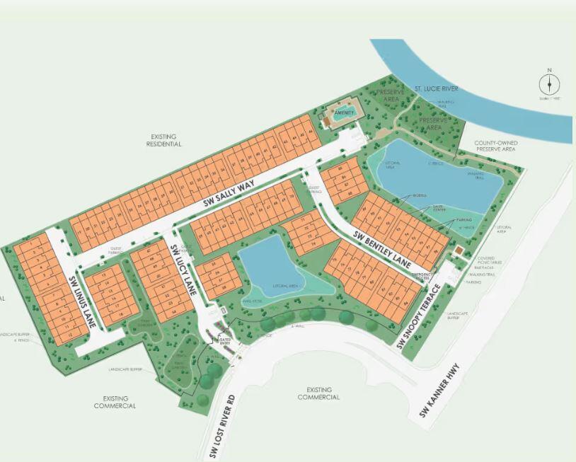
  3. 7782 Sw Bentley Lane #latitude 76-15 Stuart, FL - 34997
  • MLS® #: RX-11143327
  • 7782 Sw Bentley Lane #latitude 76-15
  • Stuart, FL 34997
  • $399,845
  • 3 Beds, 3 Bath, 1,550 SqFt
  • Residential

NEW CONSTRUCTION: Welcome to the newly opened townhome community of Camellia. Conveniently located close to highway access and all that Stuart has to offer. The Latitude is a thoughtfully designed 3 bedroom home with a welcoming kitchen island flowing into the open Gathering room. Upstairs are 3 Bedrooms and Laundry closet with washer and dryer included. An upgraded designer options package with oversized tiles and other on-trend finishes has been added and is sure to please most every decorating style. Enjoy being close to the community amenity area and view overlooking the lake.

View Virtual Tour

Essential Information

  • MLS® #RX-11143327
  • Price$399,845
  • Bedrooms3
  • Bathrooms3.00
  • Full Baths2
  • Half Baths1
  • Square Footage1,550
  • Year Built2025
  • TypeResidential
  • Sub-TypeTownhouse / Villa / Row
  • StyleTownhouse
  • StatusPending

Community Information

  • SubdivisionCAMELLIA
  • CityStuart
  • CountyMartin
  • StateFL
  • Zip Code34997

Address

7782 Sw Bentley Lane #latitude 76-15

Area

8 - Stuart - North of Indian St

Amenities

  • UtilitiesUnderground
  • # of Garages1
  • ViewLake
  • Is WaterfrontYes
  • WaterfrontLake

Amenities

Cabana, Internet Included, Pool, Sidewalks, Street Lights

Parking

2+ Spaces, Drive - Decorative, Driveway, Garage - Attached, Guest, Vehicle Restrictions

Interior

  • HeatingCentral
  • CoolingCentral
  • # of Stories2
  • Stories2.00

Interior Features

Foyer, Cook Island, Pantry, Walk-in Closet

Appliances

Auto Garage Open, Dishwasher, Disposal, Dryer, Microwave, Range - Electric, Refrigerator, Smoke Detector, Washer, Water Heater - Elec

Exterior

  • Exterior FeaturesOpen Patio
  • WindowsImpact Glass
  • RoofComp Shingle
  • ConstructionCBS

Lot Description

< 1/4 Acre, Freeway Access, Paved Road, Sidewalks, West of US-1

Additional Information

  • Date ListedNovember 25th, 2025
  • Days on Website82
  • ZoningPUD
  • HOA Fees199
  • HOA Fees Freq.Monthly
  • Office: Pulte Realty Inc

Property Location

Please provide a valid email address.

7782 Sw Bentley Lane #latitude 76-15 on www.jupiterabacoahomes.uswww.jupiterabacoahomes.us

Offered at the current list price of $399,845, this home for sale at 7782 Sw Bentley Lane #latitude 76-15 features 3 bedrooms and 3 bathrooms. This real estate listing is located in CAMELLIA of Stuart, FL 34997 and is approximately 1,550 square feet. 7782 Sw Bentley Lane #latitude 76-15 is listed under the MLS ID of RX-11143327 and has been available through www.jupiterabacoahomes.uswww.jupiterabacoahomes.us for the Stuart real estate market for 82 days.

Facts About Stuart, FL

Stuart Beach is renowned for its diligent and well trained lifeguards mixed with the fantastic surf the area has it makes Stuart an excellent place to learn how to surf.

B&A Flea Market is a fantastic eclectic street bizarre that has been in existence in Stuart Beach for over two decades.  If you are looking for a fun day of shopping and sun make sure to visit this Stuart Beach staple.

Struart Florida is nicknamed the "The Sailfish Capital of the World"

Similar Listings to 7782 Sw Bentley Lane #latitude 76-15

Photo of Listing #RX-11069070
  • MLS® #: RX-11069070
  • 341 Se Halifax Lane
  • Stuart, FL 34994
  • $360,000
  • 3 Bed, 3 Bath, 1,475 SqFt
  • Residential
Add as Favorite
Photo of Listing #RX-11077588
  • MLS® #: RX-11077588
  • 252 Sw Otter Run Pl
  • Stuart, FL 34997
  • $368,500
  • 3 Bed, 3 Bath, 2,164 SqFt
  • Residential
Add as Favorite
Photo of Listing #RX-11106672
  • MLS® #: RX-11106672
  • 9506 Sw Purple Martin Way
  • Stuart, FL 34997
  • $349,000
  • 2 Bed, 3 Bath, 1,608 SqFt
  • Residential
Add as Favorite
Photo of Listing #RX-11054227
  • MLS® #: RX-11054227
  • 3916 Se Mentmore Lane
  • Stuart, FL 34997
  • $445,000
  • 3 Bed, 3 Bath, 1,804 SqFt
  • Residential
Add as Favorite

All listings featuring the BMLS logo are provided by Beaches MLS Inc. Copyright 2026 Beaches MLS. This information is not verified for authenticity or accuracy and is not guaranteed.
© 2026 Beaches Multiple Listing Service, Inc. All rights reserved.

Listing information last updated on February 15th, 2026 at 3:45pm CST.