1. Home
  2. Search Listings
  3. 2328 S Congress Av #2 B Palm Springs, FL - 33406
  • MLS® #: RX-11133280
  • 2328 S Congress Av #2 B
  • Palm Springs, FL 33406
  • $3,755
  • 43560.00 Acres
  • Commercial

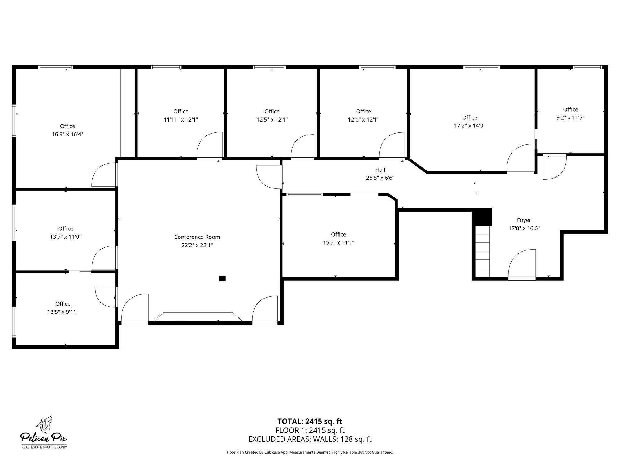
Excellent Opportunity - Flexible Office Space for Lease. Prime office space available | free standing two-story professional building located at 2328 S Congress Ave, in the high-traffic corridor of Palm Springs / West Palm Beach. On the second floor, there are two SUITES, B & C, each with private office spaces separated by walls and doors. SUITE B: 5 offices, foyer & hallway -Total 1287.35 SF. $3755 monthly equates to: 1287 sq.ft. X $ 35.00. All measurements are approximate and should be verified by the client and his agent. SUITE C: 4 offices & conference room - Total 1168.79 SF. $3410. Monthly equates to : 1168.79 SF X $35.00. All measurements are approximate and should be verified by the client and his agent.Both Suites have their independent entrances from the hallways. Parking is free in front, rear and back of the building. Common areas include bathrooms, elevators and staircases. Currently occupied by medical and insurance professionals.This versatile space is ideal for executive use, therapists, real estate office, mortgage brokers, accounting firms, property managers, etc. Enjoy exceptional visibility and exposure with strong daily traffic counts, minutes from I-95 and Downtown West Palm Beach. With anchor businesses in the area including Publix, Starbucks, Banks and more - surrounded by established residential communities, schools, and retail centers, it makes this a strategic location for any growing business. Call us today to schedule your private tour!

View Virtual Tour

Essential Information

  • MLS® #RX-11133280
  • Price$3,755
  • Acres43,560.00
  • Year Built1980
  • TypeCommercial
  • Sub-TypeProfessional Office
  • StatusActive

Style

Office/Professional, Office Space

Community Information

  • Address2328 S Congress Av #2 B
  • Area5690
  • SubdivisionCONGRESS PARK OFFICE CONDO
  • CityPalm Springs
  • CountyPalm Beach
  • StateFL
  • Zip Code33406

Amenities

  • UtilitiesPublic Sewer
  • Is WaterfrontYes

Interior

  • AppliancesNone
  • HeatingOther
  • CoolingElectric, Central
  • # of Stories2

Exterior

  • Lot DescriptionOffice Lease
  • RoofComp Shingle
  • ConstructionBlock, Brick

Additional Information

  • Date ListedOctober 17th, 2025
  • Days on Website75
  • ZoningCG(cit
  • Office: Lpt Realty, Llc

Property Location

Please provide a valid email address.

2328 S Congress Av #2 B on www.jupiterabacoahomes.uswww.jupiterabacoahomes.us

Offered at the current list price of $3,755, this home for sale at 2328 S Congress Av #2 B features bedrooms and 0 bathrooms. This real estate listing is located in CONGRESS PARK OFFICE CONDO of Palm Springs, FL 33406 . 2328 S Congress Av #2 B is listed under the MLS ID of RX-11133280 and has been available through www.jupiterabacoahomes.uswww.jupiterabacoahomes.us for the Palm Springs real estate market for 75 days.

Similar Listings to 2328 S Congress Av #2 B

Photo of Listing #RX-11142326
  • MLS® #: RX-11142326
  • 3199 Lake Worth Road #b4
  • Palm Springs, FL 33461
  • $399,900
  • 1,418 SqFt, 1 Acre
  • Commercial
Add as Favorite

All listings featuring the BMLS logo are provided by Beaches MLS Inc. Copyright 2025 Beaches MLS. This information is not verified for authenticity or accuracy and is not guaranteed.
© 2025 Beaches Multiple Listing Service, Inc. All rights reserved.

Listing information last updated on December 31st, 2025 at 8:30am CST.