1. Home
  2. Search Listings
  3. 975 S Easy St Sebastian, FL - 32958
REDUCED
  • MLS® #: RX-11130914
  • 975 S Easy St
  • Sebastian, FL 32958
  • $289,000
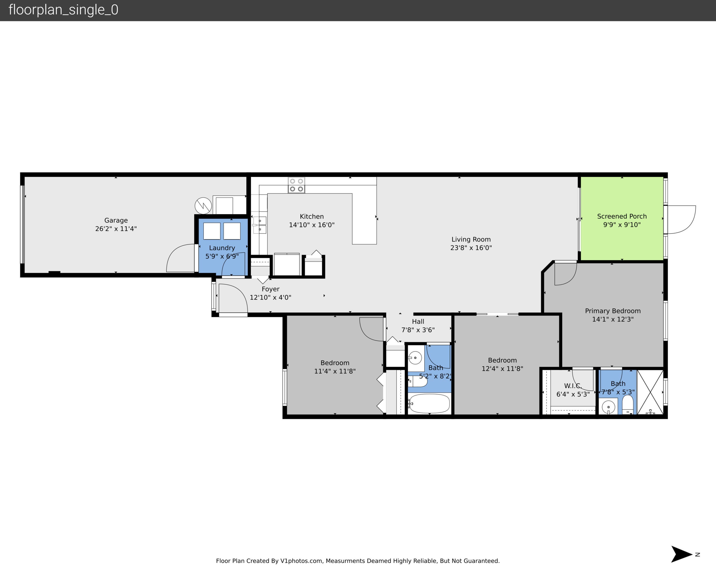
  • 2 Beds, 2 Bath, 1,500 SqFt
  • Residential

Beautifully Updated 2 Bedroom + Den Condo with Low HOA!This stunning 2 bed, 2 bath condo with a den offers modern comfort and unbeatable value! Walking distance to the Sebastian Nature Trail, it features a new roof (2022), AC (2020) w/ new compressor, and an $8K whole-home filtration system. Inside: new carpet, blinds, faucets, shower hardware, fire alarms, and microwave. Smart Nest thermostat and Yale keyless lock add convenience. HOA covers irrigation & landscaping for easy, maintenance-free living! Must See!

View Virtual Tour

Essential Information

  • MLS® #RX-11130914
  • Price$289,000
  • Bedrooms2
  • Bathrooms2.00
  • Full Baths2
  • Square Footage1,500
  • Year Built2005
  • TypeResidential
  • Sub-TypeTownhouse / Villa / Row
  • StyleVilla
  • StatusPrice Change

Community Information

  • Address975 S Easy St
  • Area5940
  • SubdivisionSANDRIDGE ESTATES SUB REPLAT
  • CitySebastian
  • CountyIndian River
  • StateFL
  • Zip Code32958

Amenities

  • AmenitiesNone
  • Parking2+ Spaces, Assigned
  • # of Garages1
  • WaterfrontNone

Utilities

Cable, 3-Phase Electric, Public Sewer, Public Water

Interior

  • HeatingCentral, Electric
  • CoolingCentral, Electric
  • # of Stories1
  • Stories1.00

Interior Features

Ctdrl/Vault Ceilings, Pantry, Walk-in Closet

Appliances

Auto Garage Open, Dishwasher, Disposal, Microwave, Range - Electric, Refrigerator, Water Heater - Elec

Exterior

  • Exterior FeaturesScreen Porch
  • Lot DescriptionWest of US-1
  • ConstructionBlock, Concrete

Additional Information

  • Date ListedOctober 9th, 2025
  • Days on Website26
  • ZoningRES
  • HOA Fees134
  • HOA Fees Freq.Monthly
  • Office: Atlantic Shores Era Powered

Property Location

Please provide a valid email address.

975 S Easy St on www.jupiterabacoahomes.uswww.jupiterabacoahomes.us

Offered at the current list price of $289,000, this home for sale at 975 S Easy St features 2 bedrooms and 2 bathrooms. This real estate listing is located in SANDRIDGE ESTATES SUB REPLAT of Sebastian, FL 32958 and is approximately 1,500 square feet. 975 S Easy St is listed under the MLS ID of RX-11130914 and has been available through www.jupiterabacoahomes.uswww.jupiterabacoahomes.us for the Sebastian real estate market for 26 days.

Similar Listings to 975 S Easy St

Photo of Listing #RX-11129246
  • MLS® #: RX-11129246
  • 6235 Mirror Lake Manor Mnr #6235
  • Sebastian, FL 32958
  • $295,000
  • 2 Bed, 2 Bath, 1,150 SqFt
  • Residential
Add as Favorite

All listings featuring the BMLS logo are provided by Beaches MLS Inc. Copyright 2025 Beaches MLS. This information is not verified for authenticity or accuracy and is not guaranteed.
© 2025 Beaches Multiple Listing Service, Inc. All rights reserved.

Listing information last updated on November 4th, 2025 at 10:00pm CST.