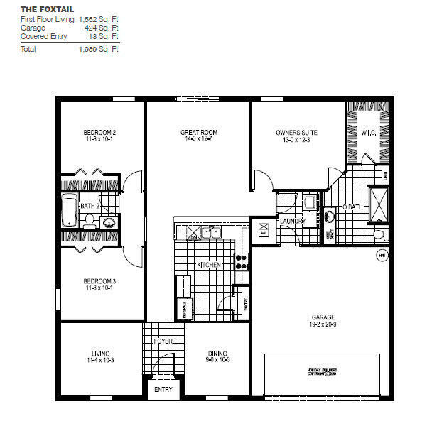
AVAILABLE NOW!!! VALUE SERIES Homes, the FOXTAIL. Known for being a quality build, this CBS constructed home includes our energy smart features throughout with digital thermostat, 14 SEER rated heating, ventilation & A/C system, roof vent and soffit for attic vent, and dual pane energy efficient windows. No reason to rent a home when you can own. Standard selections of laminate countertops, vinyl flooring with carpet in bedrooms and living areas are pre-selected, keeping buyers' savings in mind. This new home includes one full year of builder's transferable warranty coverage and a 10-year limited structural warranty.
View Virtual Tour3-Phase Electric, Public Sewer, Public Water
Dishwasher, Microwave, Range - Electric, Storm Shutters
< 1/4 Acre, Paved Road, Public Road
 
		 
		 
		 
		 All listings featuring the BMLS logo are provided by Beaches MLS Inc. Copyright 2025 Beaches MLS. This information is not verified for authenticity or accuracy and is not guaranteed.
All listings featuring the BMLS logo are provided by Beaches MLS Inc. Copyright 2025 Beaches MLS. This information is not verified for authenticity or accuracy and is not guaranteed.
© 2025 Beaches Multiple Listing Service, Inc. All rights reserved. 
Listing information last updated on October 30th, 2025 at 9:45pm CDT.