1. Home
  2. Search Listings
  3. 11240 Sw Wyndham Way Port Saint Lucie, FL - 34987
  • MLS® #: RX-11055782
  • 11240 Sw Wyndham Way
  • Port Saint Lucie, FL 34987
  • $699,900
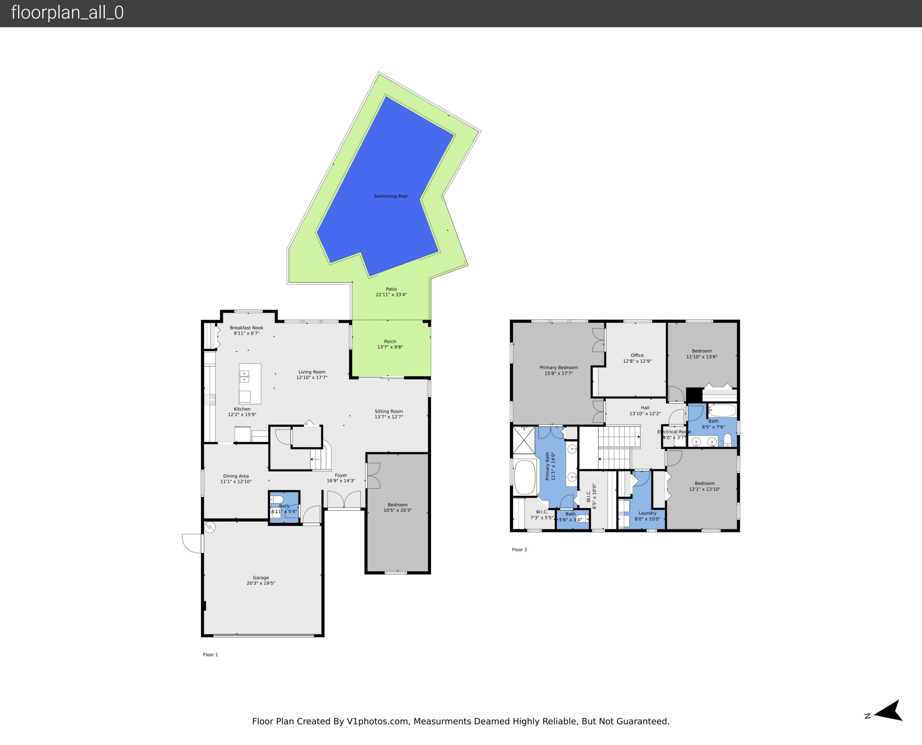
  • 4 Beds, 3 Bath, 2,886 SqFt
  • Residential

Discover spacious living in this 3-bedroom + den, 2.5-bathroom lakefront pool home in TownPark at Tradition, home sits on a 1/3 acre lakefront corner lot! Perfect for entertaining, the open floor plan includes upgrades like impact windows, a gourmet kitchen with 42'' cabinets, a custom backsplash, stainless steel appliances, and a stone accent wall. Ceramic tile is on a diagonal pattern , private pool with lake views add elegance and charm. The master suite provides a peaceful retreat with serene lake views. Recent updates include a NEW water heater, refrigerator, and washer/dryer. HOA fees cover cable, high-speed internet, irrigation, a manned gate, and a beautiful clubhouse. Tradition offers parks, dining, shopping, and proximity to the Cleveland Clinic and I-95. Call today for a tour!!

View Virtual Tour

Essential Information

  • MLS® #RX-11055782
  • Price$699,900
  • Bedrooms4
  • Bathrooms3.00
  • Full Baths2
  • Half Baths1
  • Square Footage2,886
  • Year Built2012
  • TypeResidential
  • Sub-TypeSingle Family Detached
  • StyleMediterranean
  • StatusActive

Community Information

  • Address11240 Sw Wyndham Way
  • Area7800
  • CityPort Saint Lucie
  • CountySt. Lucie
  • StateFL
  • Zip Code34987

Subdivision

TRADITION PLAT NO 19 REPLAT NO 4 TOWNPARK PHASE 1

Amenities

  • Parking2+ Spaces, Garage - Attached
  • # of Garages2
  • ViewPool, Lake
  • Is WaterfrontYes
  • WaterfrontLake
  • Has PoolYes

Amenities

Bike - Jog, Billiards, Clubhouse, Community Room, Exercise Room, Manager on Site, Pool, Street Lights, Tennis, Basketball, Game Room, Spa-Hot Tub, Business Center, Cabana, Dog Park

Utilities

Cable, 3-Phase Electric, Public Sewer, Public Water, Underground

Pool

Salt Water, Gunite, Equipment Included

Interior

  • HeatingCentral, Electric
  • CoolingCentral, Electric
  • # of Stories2
  • Stories2.00

Interior Features

Foyer, Cook Island, Pantry, Walk-in Closet, Roman Tub, Closet Cabinets

Appliances

Dishwasher, Disposal, Dryer, Microwave, Range - Electric, Refrigerator, Washer, Water Heater - Elec, Auto Garage Open

Exterior

  • Lot Description1/4 to 1/2 Acre
  • WindowsSingle Hung Metal
  • RoofConcrete Tile
  • ConstructionCBS, Frame, Frame/Stucco

Exterior Features

Fence, Open Patio, Auto Sprinkler, Open Porch

Additional Information

  • Date ListedJanuary 25th, 2025
  • Days on Website276
  • ZoningMaster
  • HOA Fees388
  • HOA Fees Freq.Monthly
  • Office: Atlantic Shores Era Powered

Property Location

Please provide a valid email address.

11240 Sw Wyndham Way on www.jupiterabacoahomes.uswww.jupiterabacoahomes.us

Offered at the current list price of $699,900, this home for sale at 11240 Sw Wyndham Way features 4 bedrooms and 3 bathrooms. This real estate listing is located in TRADITION PLAT NO 19 REPLAT NO 4 TOWNPARK PHASE 1 of Port Saint Lucie, FL 34987 and is approximately 2,886 square feet. 11240 Sw Wyndham Way is listed under the MLS ID of RX-11055782 and has been available through www.jupiterabacoahomes.uswww.jupiterabacoahomes.us for the Port Saint Lucie real estate market for 276 days.

Similar Listings to 11240 Sw Wyndham Way

Photo of Listing #RX-11033833
  • MLS® #: RX-11033833
  • 11690 Sw Rockville Ct
  • Port Saint Lucie, FL 34987
  • $749,999
  • 5 Bed, 4 Bath, 3,963 SqFt
  • Residential
Add as Favorite
Photo of Listing #RX-11040139
  • MLS® #: RX-11040139
  • 12965 Sw Aureolian Lane
  • Port Saint Lucie, FL 34987
  • $649,999
  • 3 Bed, 2 Bath, 2,170 SqFt
  • Residential
Add as Favorite
Photo of Listing #RX-11043854
  • MLS® #: RX-11043854
  • 10352 Sw Westlawn Blvd
  • Port Saint Lucie, FL 34987
  • $638,000
  • 3 Bed, 2 Bath, 2,297 SqFt
  • Residential
Add as Favorite
Photo of Listing #RX-11055856
  • MLS® #: RX-11055856
  • 11821 Sw Coral Cove Pkwy
  • Port Saint Lucie, FL 34987
  • $739,000
  • 3 Bed, 3 Bath, 2,157 SqFt
  • Residential
Add as Favorite

All listings featuring the BMLS logo are provided by Beaches MLS Inc. Copyright 2025 Beaches MLS. This information is not verified for authenticity or accuracy and is not guaranteed.
© 2025 Beaches Multiple Listing Service, Inc. All rights reserved.

Listing information last updated on October 28th, 2025 at 7:30pm CDT.