1. Home
  2. Search Listings
  3. 243 29th St West Palm Beach, FL - 33407
  • MLS® #: RX-11055752
  • 243 29th St
  • West Palm Beach, FL 33407
  • $3,900,000
  • 5 Beds, 5 Bath, 3,414 SqFt
  • Residential

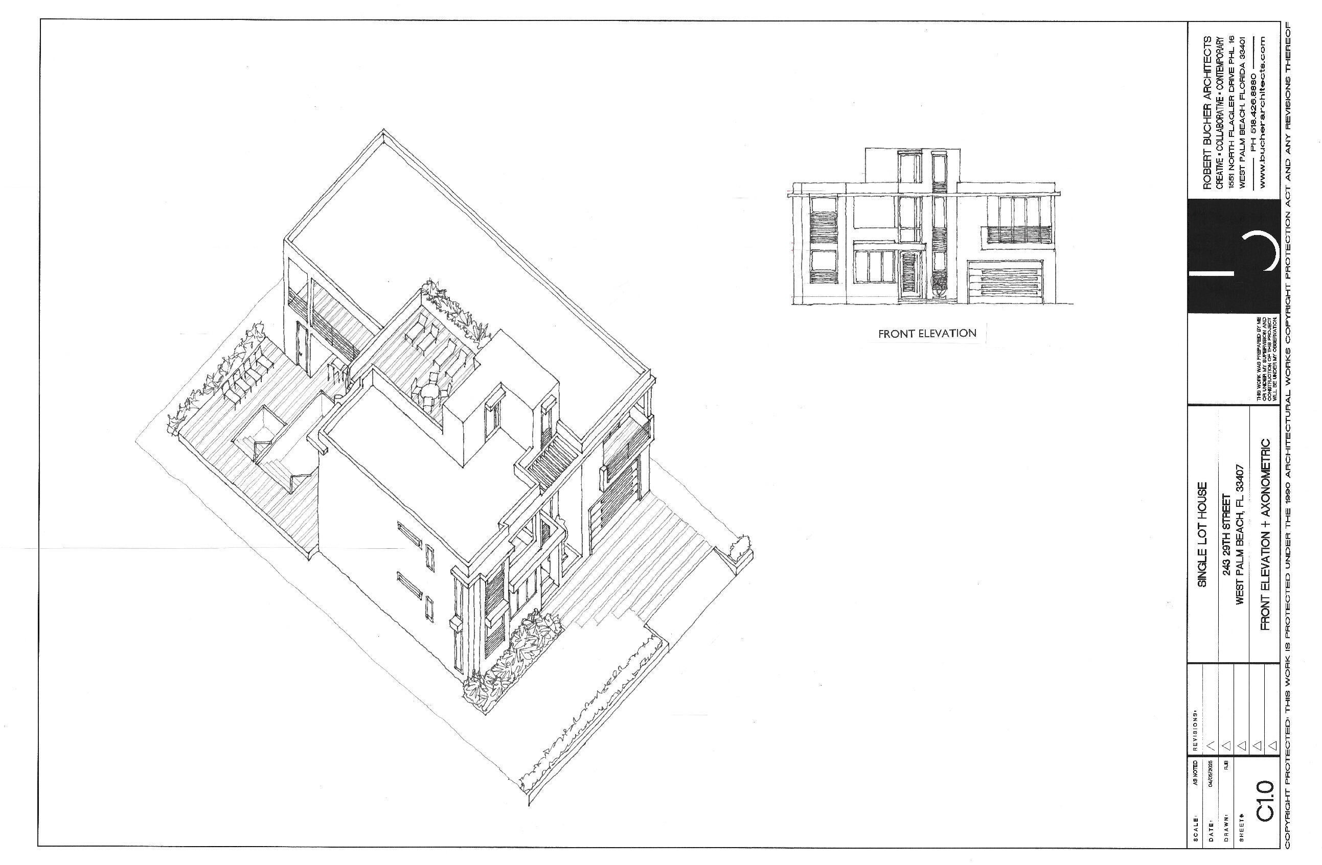
Rare opportunity to acquire renowned artist Ralph Wolfe Cowan's estate. Ideally located, this lake block residence in Northwood Shores is adjacent to prestigious N Flagler Drive. Expansive property includes 25,700 square feet (.59-acre) with 224' of street frontage. Existing structure is comprised of 3-living spaces featuring cathedral ceilings, large studio workspace and a new roof (2022). Ready for renovations, subdivide (minimum 6,000 SF with 60' frontage) or new build. Located near Northwood Village with galleries, shops and restaurants. Currie Park waterfront redevelopment under way. Architectural renderings courtesy of Robert Bucher Architects PA, located in West Palm Beach. The firm exclusively focuses on luxury contemporary residential design. Inquire for specifics.

View Virtual Tour

Essential Information

  • MLS® #RX-11055752
  • Price$3,900,000
  • Bedrooms5
  • Bathrooms5.00
  • Full Baths4
  • Half Baths1
  • Square Footage3,414
  • Year Built1949
  • TypeResidential
  • Sub-TypeSingle Family Detached
  • StyleRanch
  • StatusPending

Community Information

  • Address243 29th St
  • Area5420
  • SubdivisionNORTH SHORE TERRACE PL NO 1
  • CityWest Palm Beach
  • CountyPalm Beach
  • StateFL
  • Zip Code33407

Amenities

  • ViewGarden
  • WaterfrontNone
  • Has PoolYes
  • PoolInground, Spa

Amenities

Picnic Area, Shuffleboard, Sidewalks, Park

Utilities

Cable, 3-Phase Electric, Public Sewer, Public Water

Interior

  • HeatingCentral
  • CoolingCentral
  • FireplaceYes
  • # of Stories1
  • Stories1.00

Interior Features

Bar, Ctdrl/Vault Ceilings, Entry Lvl Lvng Area, Wet Bar, Decorative Fireplace

Appliances

Dishwasher, Dryer, Microwave, Range - Electric, Refrigerator, Washer, Water Heater - Elec

Exterior

  • WindowsBlinds, Jalousie, Drapes
  • RoofConcrete Tile
  • ConstructionCBS

Exterior Features

Covered Patio, Fence, Open Porch, Shed, Cabana

Lot Description

Paved Road, Sidewalks, 1/2 to < 1 Acre

School Information

  • MiddleRoosevelt Middle School
  • HighPalm Beach Lakes High School

Elementary

Pleasant City Elementary School

Additional Information

  • Date ListedJanuary 24th, 2025
  • Days on Website277
  • ZoningRD-1
  • Office: William Raveis Real Estate

Property Location

Please provide a valid email address.

243 29th St on www.jupiterabacoahomes.uswww.jupiterabacoahomes.us

Offered at the current list price of $3,900,000, this home for sale at 243 29th St features 5 bedrooms and 5 bathrooms. This real estate listing is located in NORTH SHORE TERRACE PL NO 1 of West Palm Beach, FL 33407 and is approximately 3,414 square feet. 243 29th St is listed under the MLS ID of RX-11055752 and has been available through www.jupiterabacoahomes.uswww.jupiterabacoahomes.us for the West Palm Beach real estate market for 277 days.

Facts About West Palm Beach, FL

West Palm Beach is home to over one million people and is the 3rd most populated city in the state of Florida.

To enjoy a taste of the local ethnic cuisine that has inspired West Palm Beach since its inception visit Havana. This Cuban-style restaurant features specialties like Cuban coffee, fried churros , exotic fruits and slow roasted Spanish chicken.

One of West Palm Beach's favorite venues for a cold drink and some nice South Florida relaxation is E.R. Bradley's Saloon. This open air restaurant is a frequent stop for both locals and tourists.

Similar Listings to 243 29th St

Photo of Listing #RX-10970189
  • MLS® #: RX-10970189
  • 362 Churchill Rd
  • West Palm Beach, FL 33405
  • $3,995,000
  • 6 Bed, 7 Bath, 4,750 SqFt
  • Residential
Add as Favorite
Photo of Listing #RX-11046128
  • MLS® #: RX-11046128
  • 3504 S Olive Av
  • West Palm Beach, FL 33405
  • $3,475,000
  • 4 Bed, 4 Bath, 2,378 SqFt
  • Residential
Add as Favorite
Photo of Listing #RX-10996296
  • MLS® #: RX-10996296
  • 231 Sunset Rd
  • West Palm Beach, FL 33401
  • $3,750,000
  • 4 Bed, 5 Bath, 2,785 SqFt
  • Residential
Add as Favorite
Photo of Listing #RX-11059329
  • MLS® #: RX-11059329
  • 6815 Monmouth Rd
  • West Palm Beach, FL 33413
  • $3,333,000
  • 5 Bed, 3 Bath, 2,911 SqFt
  • Residential
Add as Favorite

All listings featuring the BMLS logo are provided by Beaches MLS Inc. Copyright 2025 Beaches MLS. This information is not verified for authenticity or accuracy and is not guaranteed.
© 2025 Beaches Multiple Listing Service, Inc. All rights reserved.

Listing information last updated on October 28th, 2025 at 6:01pm CDT.