1. Home
  2. Search Listings
  3. 11340 Polo Park Trail Wellington, FL - 33414
  • MLS® #: R11163019
  • 11340 Polo Park Trail
  • Wellington, FL 33414
  • $9,995,000
  • 6 Beds, 9 Bath, 7,753 SqFt
  • Residential

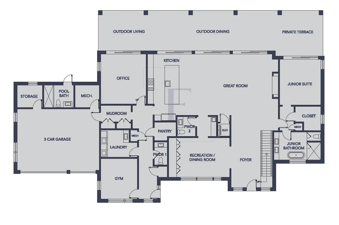
Welcome to Farrell Estates, a premier 27-home enclave in the Palm Beach Polo Club. Lot 22 commands attention with over 7,700 living sq. ft. and 10,000 total sq. ft. of architectural excellence. A grand staircase and two-story foyer lead to a main level finished in grand porcelain tile, featuring an open-concept family room, side bar, and chef's kitchen. This level includes a Junior suite and a unique flex-wing with a separate entrance, perfect for a gym or office. Upstairs, warm oak floors flow through five ensuite bedrooms and an expansive bonus room. The primary sanctuary offers a private sitting room and spa-like bath. Outside, a 1,000+ sq. ft. patio with a pool and spa defines Hamptons-style luxury. Experience a residence designed for the most discerning buyer. The immense scale of Lot 22 is matched by its meticulous detail. The 10,000+ total square footage includes a massive 1,000+ sq. ft. second-story terrace, offering a breathtaking venue for evening cocktails. Inside, a personal elevator provides seamless access, while 2.25-inch solid core doors ensure ultimate privacy. Effortless estate management is guaranteed with dual laundry centers upstairs and downstairs each equipped with two washers and two dryers. Every finish is bespoke, from custom cabinetry to stunning quartzite countertops. The primary wing is a masterclass in luxury, featuring dual walk-in closets and a freestanding tub. Complete with a three-car garage for your collection, Lot 22 at Farrell Estates represents a curated lifestyle of sophistication and grandeur.

Essential Information

  • MLS® #R11163019
  • Price$9,995,000
  • Bedrooms6
  • Bathrooms9.00
  • Full Baths7
  • Half Baths2
  • Square Footage7,753
  • Year Built2026
  • TypeResidential
  • Sub-TypeSingle Family Residence
  • StyleColonial
  • StatusActive

Community Information

  • Address11340 Polo Park Trail
  • Area5520
  • SubdivisionFARRELL ESTATES WELLINGTON
  • CityWellington
  • CountyPalm Beach
  • StateFL
  • Zip Code33414

Amenities

  • ParkingGarage, Attached Garage
  • # of Garages3
  • ViewLake
  • Is WaterfrontYes
  • WaterfrontPond
  • Has PoolYes
  • PoolIn Ground

Amenities

Clubhouse, Fitness Center, Jogging Path, Tennis Court(s), Cafe/Restaurant, Pickleball Court(s), Sidewalks

Utilities

Natural Gas Available, Sewer Available, Water Available

Interior

  • HeatingCentral, Electric
  • CoolingCentral Air, Electric
  • # of Stories2
  • StoriesMulti/Split

Interior Features

Built-in Features, Elevator, High Ceilings, Pantry, Walk-In Closet(s), Closet Cabinetry

Appliances

Electric Water Heater, Dryer, Dishwasher, Free-Standing Freezer, Gas Range, Refrigerator, Water Heater, Washer

Exterior

  • Exterior FeaturesPool Bathroom, Balcony
  • Lot DescriptionSidewalks
  • RoofMetal
  • ConstructionCBS

School Information

  • ElementaryElbridge Gale
  • MiddlePolo Park
  • HighWellington

Additional Information

  • Date ListedFebruary 12th, 2026
  • Days on Website33
  • ZoningPUD
  • HOA Fees750
  • HOA Fees Freq.Monthly
  • Contact Info5614403050
  • Office: Illustrated Properties

Property Location

Please provide a valid email address.

11340 Polo Park Trail on www.jupiterabacoahomes.uswww.jupiterabacoahomes.us

Offered at the current list price of $9,995,000, this home for sale at 11340 Polo Park Trail features 6 bedrooms and 9 bathrooms. This real estate listing is located in FARRELL ESTATES WELLINGTON of Wellington, FL 33414 and is approximately 7,753 square feet. 11340 Polo Park Trail is listed under the MLS ID of R11163019 and has been available through www.jupiterabacoahomes.uswww.jupiterabacoahomes.us for the Wellington real estate market for 33 days.

Similar Listings to 11340 Polo Park Trail

Photo of Listing #R10946224
  • MLS® #: R10946224
  • 3601 Grand Prix Farms Drive
  • Wellington, FL 33414
  • $9,250,000
  • 2 Bath
  • Residential
Add as Favorite
Photo of Listing #R11136895
  • MLS® #: R11136895
  • 15359 Sunnyland Lane
  • Wellington, FL 33414
  • $9,750,000
  • 4 Bed, 5 Bath, 5,241 SqFt
  • Residential
Add as Favorite
Photo of Listing #R11123995
  • MLS® #: R11123995
  • 3509 Grand Prix Farms Drive
  • Wellington, FL 33414
  • $10,975,000
  • 1 Bed, 4 Bath, 1,580 SqFt
  • Residential
Add as Favorite
Photo of Listing #R10925276
  • MLS® #: R10925276
  • 14484 Belmont Trace
  • Wellington, FL 33414
  • $9,995,000
  • 4 Bed, 7 Bath, 6,942 SqFt
  • Residential
Add as Favorite

All listings featuring the BMLS logo are provided by Beaches MLS Inc. Copyright 2026 Beaches MLS. This information is not verified for authenticity or accuracy and is not guaranteed.
© 2026 Beaches Multiple Listing Service, Inc. All rights reserved.

Listing information last updated on March 17th, 2026 at 10:00pm CDT.