1. Home
  2. Search Listings
  3. 1490 3rd Court Vero Beach, FL - 32960
  • MLS® #: R11159871
  • 1490 3rd Court
  • Vero Beach, FL 32960
  • $253,000
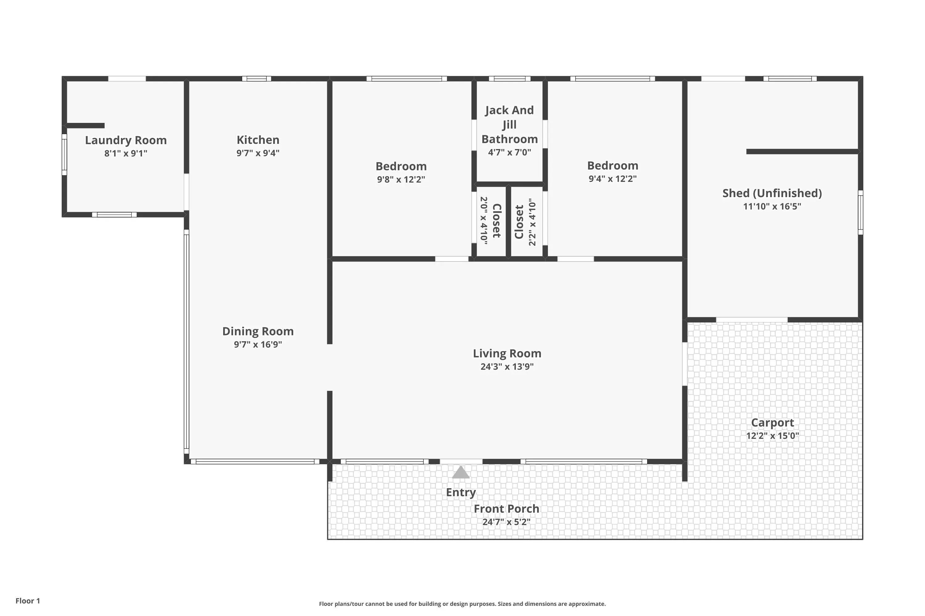
  • 2 Beds, 2 Bath, 1,062 SqFt
  • Residential

Highly desirable neighborhood - Convenient location! County location provides AirBNB possibilities, just outside City limits. Close to Vero's exciting 3 Corners waterfront revival development. Super clean with fresh paint, Terrazzo floors, large lot straddles 2 corners! 2 bedrooms, 2 bath & inside laundry. Carport plus enclosed storage area. Sizes are approx/subject to change.

Essential Information

  • MLS® #R11159871
  • Price$253,000
  • Bedrooms2
  • Bathrooms2.00
  • Full Baths2
  • Square Footage1,062
  • Year Built1959
  • TypeResidential
  • Sub-TypeSingle Family Residence
  • StatusActive Under Contract

Community Information

  • Address1490 3rd Court
  • Area5940 - Other Florida County
  • CityVero Beach
  • CountyIndian River
  • StateFL
  • Zip Code32960

Subdivision

ROCK RIDGE SUBDIVISION UNIT NO 5

Amenities

  • AmenitiesNone
  • WaterfrontNone

Utilities

Sewer Available, Water Available

Interior

  • Interior FeaturesNone
  • HeatingCentral
  • # of Stories1

Appliances

Electric Water Heater, Dryer, Dishwasher, Electric Range, Refrigerator, Water Heater, Washer

Cooling

Central Air, Ceiling Fan(s), Electric

Exterior

  • ConstructionConcrete, Stucco

School Information

  • ElementaryVero Beach
  • MiddleGifford
  • HighVero Beach

Additional Information

  • Date ListedFebruary 2nd, 2026
  • Days on Website44
  • ZoningRM-10
  • Office: Dale Sorensen Real Estate Inc.

Property Location

Please provide a valid email address.

1490 3rd Court on www.jupiterabacoahomes.uswww.jupiterabacoahomes.us

Offered at the current list price of $253,000, this home for sale at 1490 3rd Court features 2 bedrooms and 2 bathrooms. This real estate listing is located in ROCK RIDGE SUBDIVISION UNIT NO 5 of Vero Beach, FL 32960 and is approximately 1,062 square feet. 1490 3rd Court is listed under the MLS ID of R11159871 and has been available through www.jupiterabacoahomes.uswww.jupiterabacoahomes.us for the Vero Beach real estate market for 44 days.

Similar Listings to 1490 3rd Court

Photo of Listing #R11144325
  • MLS® #: R11144325
  • 2646 12th Avenue
  • Vero Beach, FL 32960
  • $248,000
  • 2 Bed, 2 Bath, 785 SqFt
  • Residential
Add as Favorite
Photo of Listing #R11137180
  • MLS® #: R11137180
  • 1656 41st Avenue
  • Vero Beach, FL 32960
  • $260,000
  • 2 Bed, 2 Bath, 1,268 SqFt
  • Residential
Add as Favorite
Photo of Listing #R11159889
  • MLS® #: R11159889
  • 1471 4th Court
  • Vero Beach, FL 32960
  • $234,000
  • 2 Bed, 2 Bath, 624 SqFt
  • Residential
Add as Favorite
Photo of Listing #R11169540
  • MLS® #: R11169540
  • 1646 31st Avenue
  • Vero Beach, FL 32960
  • $239,000
  • 3 Bed, 1 Bath, 1,232 SqFt
  • Residential
Add as Favorite

All listings featuring the BMLS logo are provided by Beaches MLS Inc. Copyright 2026 Beaches MLS. This information is not verified for authenticity or accuracy and is not guaranteed.
© 2026 Beaches Multiple Listing Service, Inc. All rights reserved.

Listing information last updated on March 18th, 2026 at 12:49pm CDT.