1. Home
  2. Search Listings
  3. 2860 S Seacrest Boulevard Boynton Beach, FL - 33435
  • MLS® #: R11145660
  • 2860 S Seacrest Boulevard
  • Boynton Beach, FL 33435
  • $1,500,000
  • 0.96 Acres
  • Commercial Sale

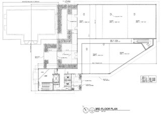
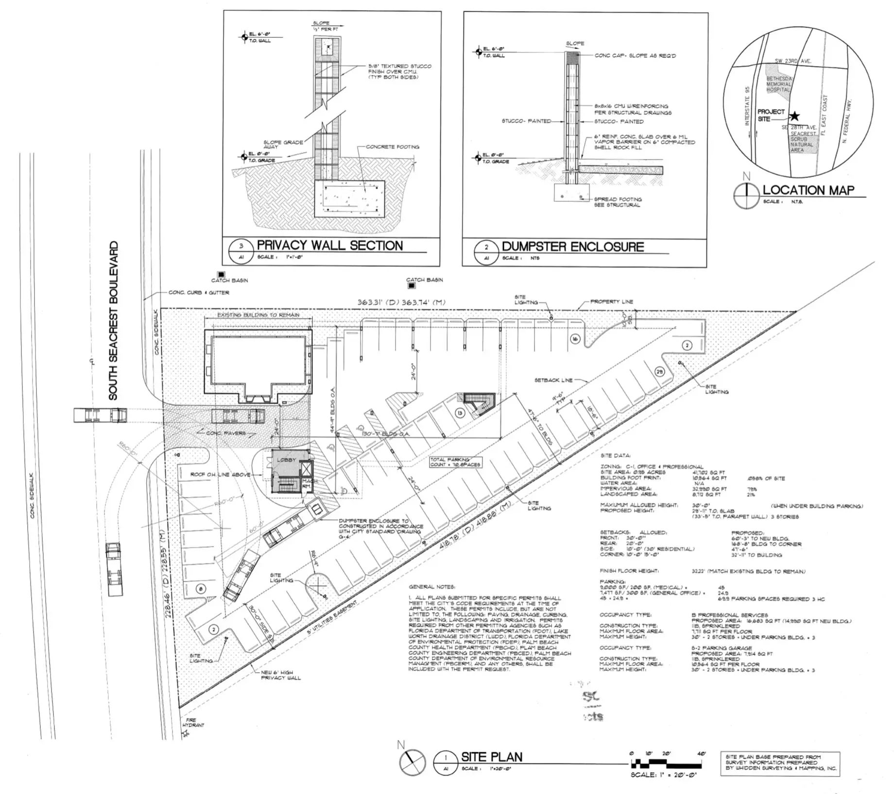
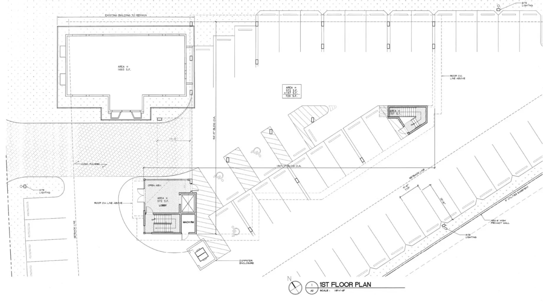
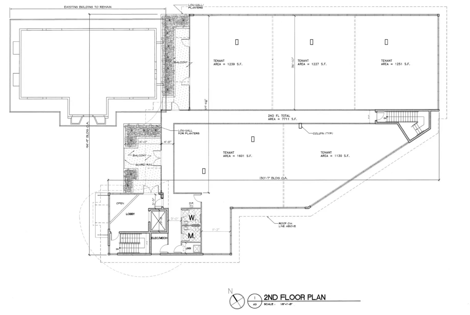
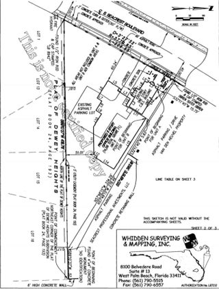
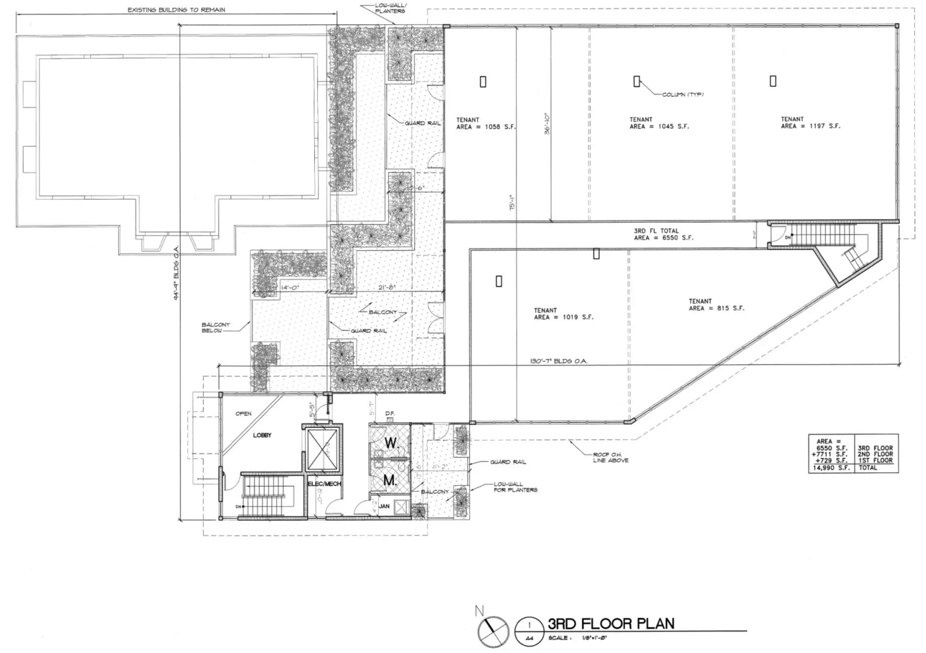
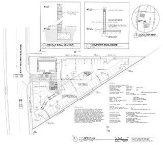
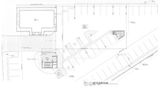
Gator Commercial Real Estate is pleased to present for sale 2860 S Seacrest Boulevard - Unit B, a vacant development site located within the Seacrest Green Professional Condominium in Boynton Beach, Florida. The property is positioned along the well-established Seacrest medical corridor, across street from Bethesda Hospital East, surrounded by a critical mass of healthcare, wellness, and professional users. Architectural renderings and conceptual plans envision a three-story, ±15,000 square foot medical office building designed to complement the surrounding professional campus. The design proposes a first-floor lobby and parking interface, 7,711 SF on the second floor, and 6,550 SF on the third floor with balconies and architectural features enhancing visibility and tenant appeal. Condominium Unit Area: 8,800 SF (0.202 acres) Common Area Interest: 83.87 % of 0.806 acres (35,123 SF) Total Economic Site Area: Ü 0.968 acres (43,923 SF) Topography: Cleared and level

Essential Information

  • MLS® #R11145660
  • Price$1,500,000
  • Acres0.96
  • TypeCommercial Sale
  • Sub-TypeOffice
  • StatusActive

Community Information

  • Address2860 S Seacrest Boulevard
  • Area4340
  • CityBoynton Beach
  • CountyPalm Beach
  • StateFL
  • Zip Code33435

Amenities

  • UtilitiesOther

Interior

  • HeatingOther
  • CoolingOther

Exterior

  • RoofOther

Additional Information

  • Date ListedDecember 5th, 2025
  • Days on Website101
  • ZoningC1(cit
  • Office: Gator Commercial Real Estate Llc

Property Location

Please provide a valid email address.

2860 S Seacrest Boulevard on www.jupiterabacoahomes.uswww.jupiterabacoahomes.us

Offered at the current list price of $1,500,000, this home for sale at 2860 S Seacrest Boulevard features bedrooms and 0 bathrooms. This real estate listing is located in of Boynton Beach, FL 33435 . 2860 S Seacrest Boulevard is listed under the MLS ID of R11145660 and has been available through www.jupiterabacoahomes.uswww.jupiterabacoahomes.us for the Boynton Beach real estate market for 101 days.

Similar Listings to 2860 S Seacrest Boulevard

Photo of Listing #R11167841
  • MLS® #: R11167841
  • 2419 S Seacrest Boulevard
  • Boynton Beach, FL 33435
  • $1,600,000
  • 5 Bath, 0.9 Acres
  • Commercial Sale
Add as Favorite

All listings featuring the BMLS logo are provided by Beaches MLS Inc. Copyright 2026 Beaches MLS. This information is not verified for authenticity or accuracy and is not guaranteed.
© 2026 Beaches Multiple Listing Service, Inc. All rights reserved.

Listing information last updated on March 16th, 2026 at 2:06pm CDT.