1. Home
  2. Search Listings
  3. 547 High Hawk Circle Vero Beach, FL - 32962
  • MLS® #: R11140637
  • 547 High Hawk Circle
  • Vero Beach, FL 32962
  • $325,000
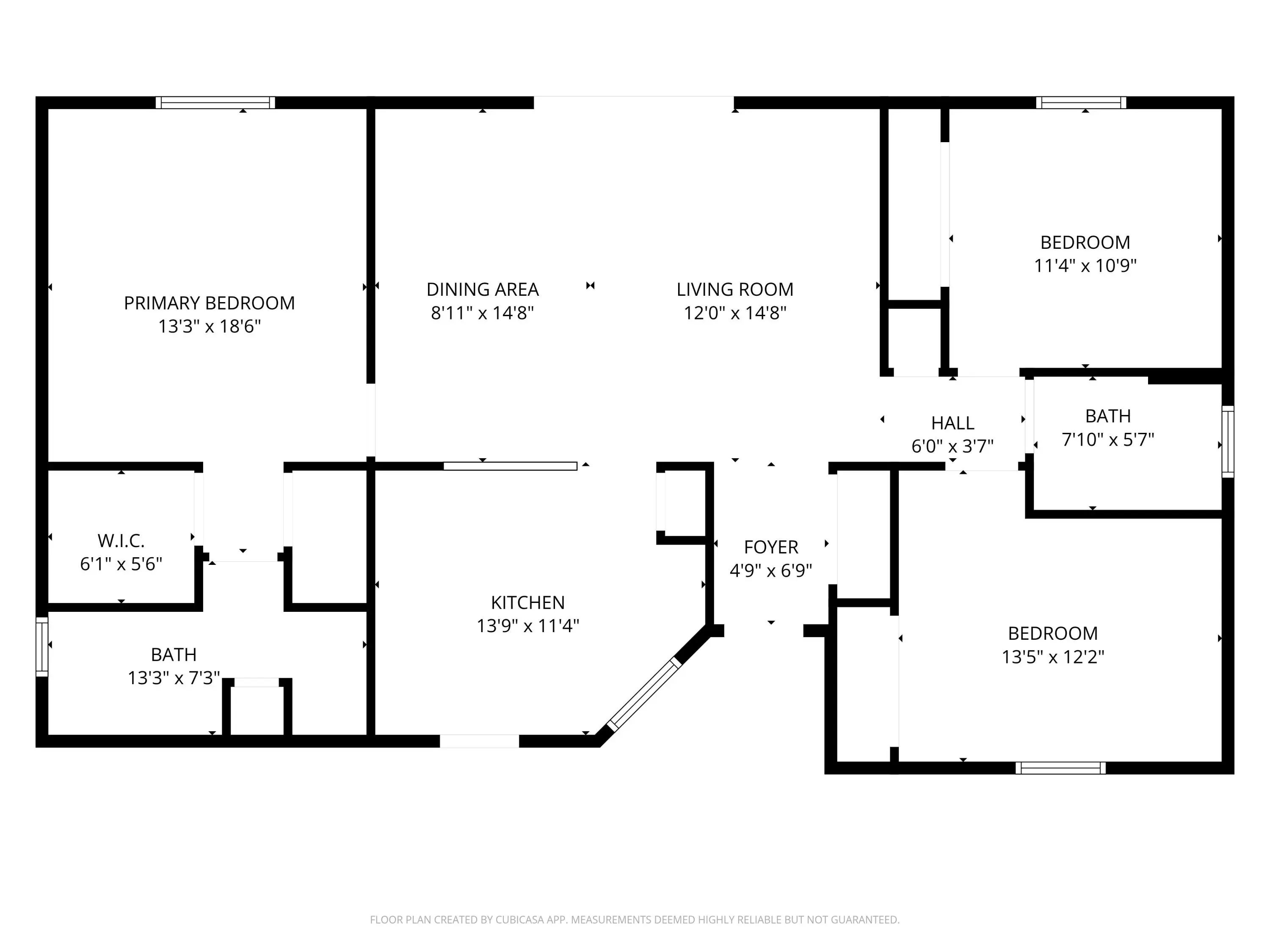
  • 3 Beds, 2 Bath, 1,330 SqFt
  • Residential

Tucked away in High Hawk, a wonderfully small gated enclave in south county, this fun & welcoming 3 bed/2 bath/2 car garage home has much sought after southern exposure! Updates include the 2021 roof & 2023 water heater. The interior has vaulted ceilings, an eat-in kitchen w/ pantry, good closet space, recessed lights & a lovely primary bedroom w/ bath featuring a big walk-in shower. Outside there is lovely upgraded landscaping, accordion hurricane shutters, gutters, a nice screened in porch & private back yard. The community is gated, has sidewalks & is close to Indian River Academy School.

Essential Information

  • MLS® #R11140637
  • Price$325,000
  • Bedrooms3
  • Bathrooms2.00
  • Full Baths2
  • Square Footage1,330
  • Year Built2005
  • TypeResidential
  • Sub-TypeSingle Family Residence
  • StatusActive Under Contract

Community Information

  • Address547 High Hawk Circle
  • Area6341 - County Southeast (IR)
  • CityVero Beach
  • CountyIndian River
  • StateFL
  • Zip Code32962

Subdivision

HIGH HAWK OF VERO BEACH PHASE 1

Amenities

  • AmenitiesSidewalks
  • ParkingGarage, Attached Garage
  • # of Garages2
  • ViewGarden
  • WaterfrontNone

Utilities

Cable Available, Sewer Available, Water Available

Interior

  • HeatingCentral, Electric
  • CoolingCentral Air, Electric
  • # of Stories1

Interior Features

Cathedral Ceiling(s), Entrance Foyer, Pantry, Vaulted Ceiling(s), Walk-In Closet(s), Bedroom Layout - Split

Appliances

Electric Water Heater, Dryer, Disposal, Dishwasher, Electric Range, Microwave, Refrigerator, Water Heater, Washer

Exterior

  • Lot DescriptionRoom for Pool
  • RoofComposition, Shingle
  • ConstructionCBS

Windows

Blinds, Single Hung Metal, Sliding

School Information

  • ElementaryIndian River
  • HighVero Beach

Additional Information

  • Date ListedNovember 14th, 2025
  • Days on Website124
  • ZoningRS-6
  • HOA Fees165
  • HOA Fees Freq.Monthly
  • Office: Custom Real Estate Srvcs Irc

Property Location

Please provide a valid email address.

547 High Hawk Circle on www.jupiterabacoahomes.uswww.jupiterabacoahomes.us

Offered at the current list price of $325,000, this home for sale at 547 High Hawk Circle features 3 bedrooms and 2 bathrooms. This real estate listing is located in HIGH HAWK OF VERO BEACH PHASE 1 of Vero Beach, FL 32962 and is approximately 1,330 square feet. 547 High Hawk Circle is listed under the MLS ID of R11140637 and has been available through www.jupiterabacoahomes.uswww.jupiterabacoahomes.us for the Vero Beach real estate market for 124 days.

Similar Listings to 547 High Hawk Circle

Photo of Listing #R11132052
  • MLS® #: R11132052
  • 1495 12th Street Sw
  • Vero Beach, FL 32962
  • $305,000
  • 2 Bed, 2 Bath, 1,268 SqFt
  • Residential
Add as Favorite
Photo of Listing #R11100228
  • MLS® #: R11100228
  • 1636 20th Place Sw
  • Vero Beach, FL 32962
  • $295,000
  • 3 Bed, 2 Bath, 1,016 SqFt
  • Residential
Add as Favorite
Photo of Listing #F10545630
  • MLS® #: F10545630
  • 1890 4th Avenue
  • Vero Beach, FL 32962
  • $323,500
  • 3 Bed, 2 Bath, 1,468 SqFt
  • Residential
Add as Favorite
Photo of Listing #R11157553
  • MLS® #: R11157553
  • 2263 4th Avenue Se
  • Vero Beach, FL 32962
  • $309,900
  • 2 Bed, 1 Bath, 978 SqFt
  • Residential
Add as Favorite

All listings featuring the BMLS logo are provided by Beaches MLS Inc. Copyright 2026 Beaches MLS. This information is not verified for authenticity or accuracy and is not guaranteed.
© 2026 Beaches Multiple Listing Service, Inc. All rights reserved.

Listing information last updated on March 18th, 2026 at 5:04pm CDT.