1. Home
  2. Search Listings
  3. 1133 Haven Circle Vero Beach, FL - 32960
  • MLS® #: R11131105
  • 1133 Haven Circle
  • Vero Beach, FL 32960
  • $545,900
  • 3 Beds, 2 Bath, 1,405 SqFt
  • Residential

Beautiful NEW CONSTRUCTION HOME! Stunning 3-bedroom, 2 -bath home by DiVosta's Newest Signature community in Vero Beach. Loaded with OVER $60K in builder upgrades and set on a premium oversized corner lot that's no longer available. NEAR CLEVELAND CLINIC INDIAN RIVER HOSPITAL. 3th bedroom will be converted with closet. The Contour plan offers split bedrooms/flex room. Enjoy entertaining in the gracious gathering room and impressive built in kitchen with GAS STOVE and ample cabinets/welcoming island. Live mere steps from the world class Amenity Campus, featuring a resort style pool, pickleball and fitness center. Conveniently located near shopping, beaches, dining, and top local amenities, this home combines comfort in one perfect package.

Essential Information

  • MLS® #R11131105
  • Price$545,900
  • Bedrooms3
  • Bathrooms2.00
  • Full Baths2
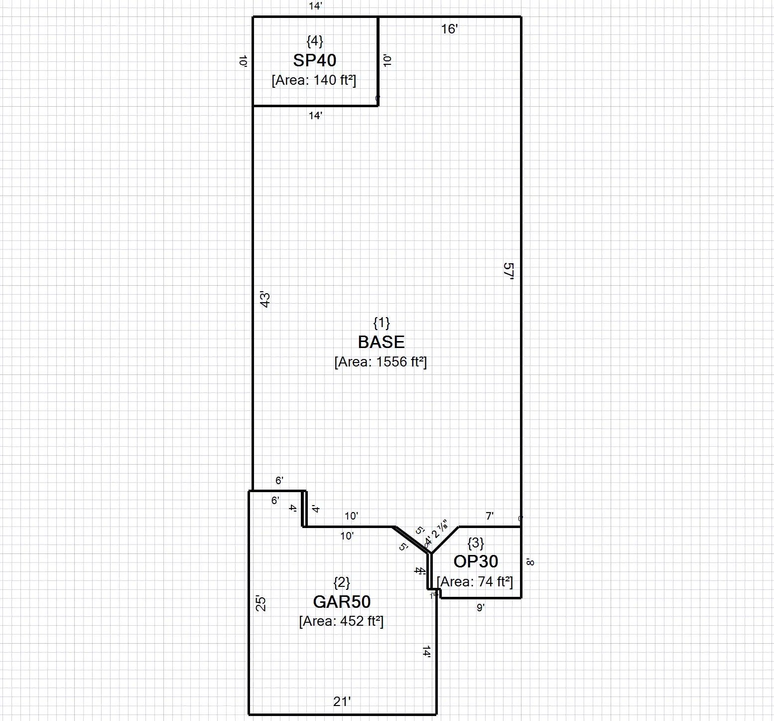
  • Square Footage1,405
  • Year Built2025
  • TypeResidential
  • Sub-TypeSingle Family Residence
  • StyleRanch
  • StatusPrice Change

Community Information

  • Address1133 Haven Circle
  • Area5940 - Other Florida County
  • SubdivisionCosta Pointe
  • CityVero Beach
  • CountyIndian River
  • StateFL
  • Zip Code32960

Amenities

  • ParkingGuest, Garage, Attached Garage
  • # of Garages2
  • ViewGarden
  • WaterfrontNone

Amenities

Clubhouse, Fitness Center, Pool, Pickleball Court(s), Sidewalks

Utilities

Sewer Available, Water Available

Interior

  • HeatingCentral, Electric, Natural Gas
  • # of Stories1

Interior Features

Built-in Features, Cathedral Ceiling(s), Pantry, Vaulted Ceiling(s), Walk-In Closet(s), Bedroom Layout - Split, Closet Cabinetry, Custom Mirrors

Appliances

Electric Water Heater, Cooktop, Dryer, Disposal, Dishwasher, Gas Range, Ice Maker, Microwave, Oven, Refrigerator, Water Heater, Washer

Cooling

Central Air, Ceiling Fan(s), Electric

Exterior

  • Lot DescriptionCorner Lot, Sidewalks
  • RoofConcrete, Tile
  • ConstructionBlock, Concrete, CBS

Additional Information

  • Date ListedOctober 10th, 2025
  • Days on Website159
  • Zoningresidential
  • HOA Fees354.29
  • HOA Fees Freq.Monthly
  • Office: Atlantic Shores Expertise Era Powered

Property Location

Please provide a valid email address.

1133 Haven Circle on www.jupiterabacoahomes.uswww.jupiterabacoahomes.us

Offered at the current list price of $545,900, this home for sale at 1133 Haven Circle features 3 bedrooms and 2 bathrooms. This real estate listing is located in Costa Pointe of Vero Beach, FL 32960 and is approximately 1,405 square feet. 1133 Haven Circle is listed under the MLS ID of R11131105 and has been available through www.jupiterabacoahomes.uswww.jupiterabacoahomes.us for the Vero Beach real estate market for 159 days.

Similar Listings to 1133 Haven Circle

Photo of Listing #F10485996
  • MLS® #: F10485996
  • 2180 Seville Avenue
  • Vero Beach, FL 32960
  • $498,000
  • 3 Bed, 2 Bath, 2,034 SqFt
  • Residential
Add as Favorite
Photo of Listing #F10534992
  • MLS® #: F10534992
  • 805 27th Avenue
  • Vero Beach, FL 32960
  • $599,000
  • 3 Bed, 3 Bath, 1,824 SqFt
  • Residential
Add as Favorite
Photo of Listing #R11158226
  • MLS® #: R11158226
  • 1546 35th Avenue
  • Vero Beach, FL 32960
  • $514,800
  • 4 Bed, 3 Bath, 1,992 SqFt
  • Residential
Add as Favorite
Photo of Listing #F10551033
  • MLS® #: F10551033
  • 915 32nd Avenue
  • Vero Beach, FL 32960
  • $575,000
  • 3 Bed, 3 Bath, 2,090 SqFt
  • Residential
Add as Favorite

All listings featuring the BMLS logo are provided by Beaches MLS Inc. Copyright 2026 Beaches MLS. This information is not verified for authenticity or accuracy and is not guaranteed.
© 2026 Beaches Multiple Listing Service, Inc. All rights reserved.

Listing information last updated on March 18th, 2026 at 2:11pm CDT.