1. Home
  2. Search Listings
  3. 1500 Se Cove Road Stuart, FL - 34997
  • MLS® #: R11128557
  • 1500 Se Cove Road
  • Stuart, FL 34997
  • $1,987,600
  • 3 Bath, 2.38 Acres
  • Commercial Sale

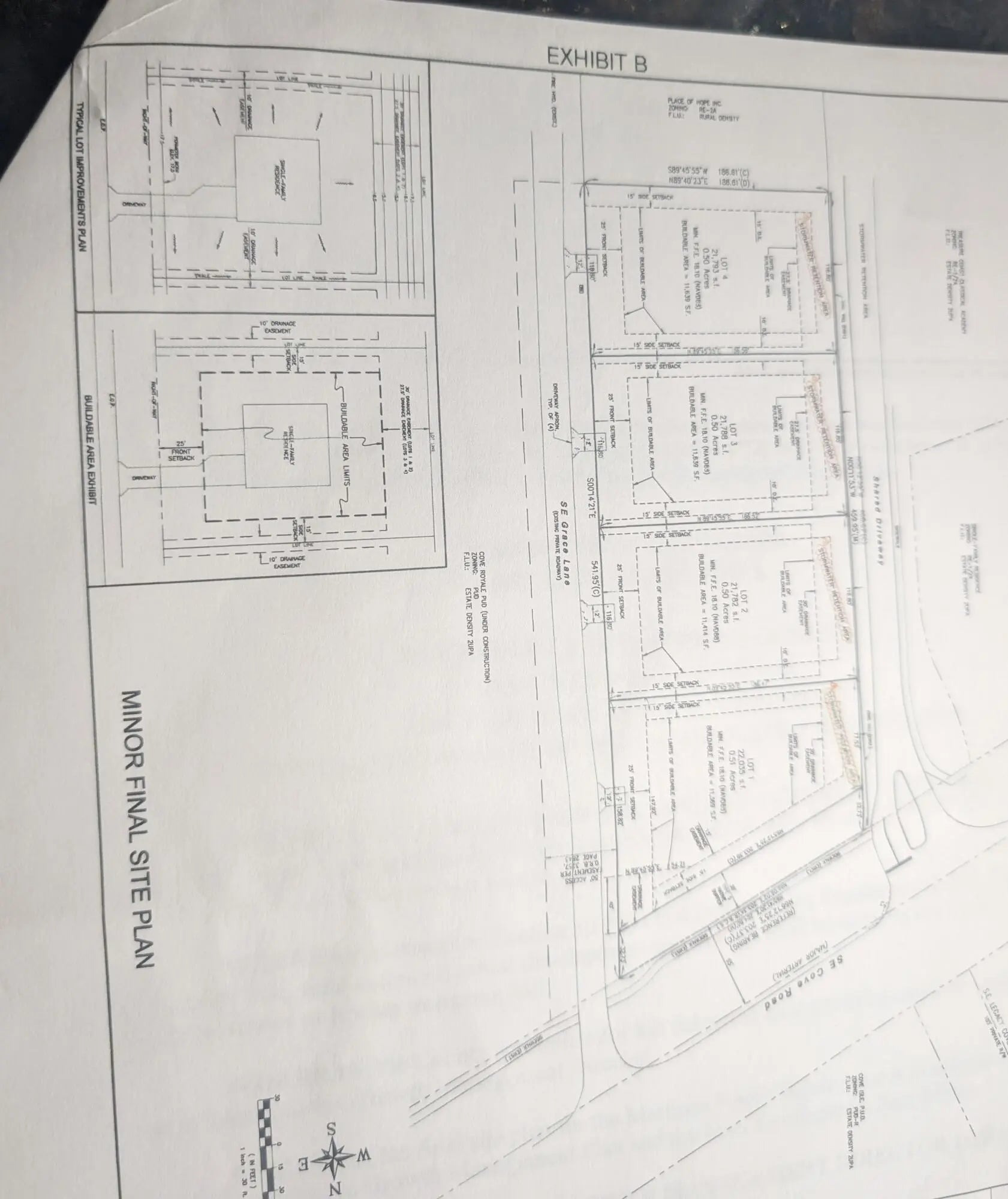
PROPERTY APPROVED AND SURVEYED FOR MULTIFAMILY IN THIS GREAT LOCATION! NEAR 95 AND WATERFRONT RESTAURANTS IN PORT SALERNO,, STUART, AND JENSEN BEACHES/PROPERTY HAS ALREADY BEEN REZONED FROM AGRICULTURAL TO MULTI-FAMILY LISTED IS EXAMPLE OF POSSIBLE USE INCLUDING BUILD OF SIX 3 STORY BLDG WITH 4 TOWNHOUSES PER BUILDING FOR A TOTAL OF 24 UNITS TO SELL APX $750K PER UNIT SEE PLAT PIC -OTHER POTENTIAL USES, OFFICES, DAYCARE, ASSISTED LIVING WAREHOUSES CHECK WITH MARTIN COUNTY BUILDING DEPT THERE ARE 4 BUILDINGS ON THE PROPERTY CONSISTING OF 3 HOUSES AND A GARAGE-PREDICTING TEAR DOWN OF THESE BUILDINGS! MANY POSSIBILITIES FOR THIS UPCOMING GROWING AREA! PLEASE VERIFY ALL ZONING AND PROPERTY DIMENSIONS ETC AS SOME ARE APROXIMATE!

Essential Information

  • MLS® #R11128557
  • Price$1,987,600
  • Bathrooms3.00
  • Acres2.38
  • Year Built1981
  • TypeCommercial Sale
  • Sub-TypeMulti Family
  • StatusActive

Community Information

  • Address1500 Se Cove Road
  • Area6120 - Stuart - Southwest
  • CityStuart
  • CountyMartin
  • StateFL
  • Zip Code34997

Interior

  • HeatingOther
  • CoolingWall/Window Unit(s)

Exterior

  • RoofOther
  • ConstructionFrame

Additional Information

  • Date ListedOctober 1st, 2025
  • Days on Website171
  • ZoningMULTIFAM
  • Office: Dalton Wade Inc

Property Location

Please provide a valid email address.

1500 Se Cove Road on www.jupiterabacoahomes.uswww.jupiterabacoahomes.us

Offered at the current list price of $1,987,600, this home for sale at 1500 Se Cove Road features bedrooms and 3 bathrooms. This real estate listing is located in of Stuart, FL 34997 . 1500 Se Cove Road is listed under the MLS ID of R11128557 and has been available through www.jupiterabacoahomes.uswww.jupiterabacoahomes.us for the Stuart real estate market for 171 days.

Facts About Stuart, FL

Some great local Stuart landmarks incluse the Lyric Theatre, the House of Refuge and the Elliot Museum

B&A Flea Market is a fantastic eclectic street bizarre that has been in existence in Stuart Beach for over two decades.  If you are looking for a fun day of shopping and sun make sure to visit this Stuart Beach staple.

Struart Florida is nicknamed the "The Sailfish Capital of the World"

All listings featuring the BMLS logo are provided by Beaches MLS Inc. Copyright 2026 Beaches MLS. This information is not verified for authenticity or accuracy and is not guaranteed.
© 2026 Beaches Multiple Listing Service, Inc. All rights reserved.

Listing information last updated on March 21st, 2026 at 8:47pm CDT.