1. Home
  2. Search Listings
  3. 150 Nw 70 Avenue #03 Plantation, FL - 33317
  • MLS® #: R11111911
  • 150 Nw 70 Avenue #03
  • Plantation, FL 33317
  • $23
  • 2 Bath, 0.75 Acres
  • Commercial Sale

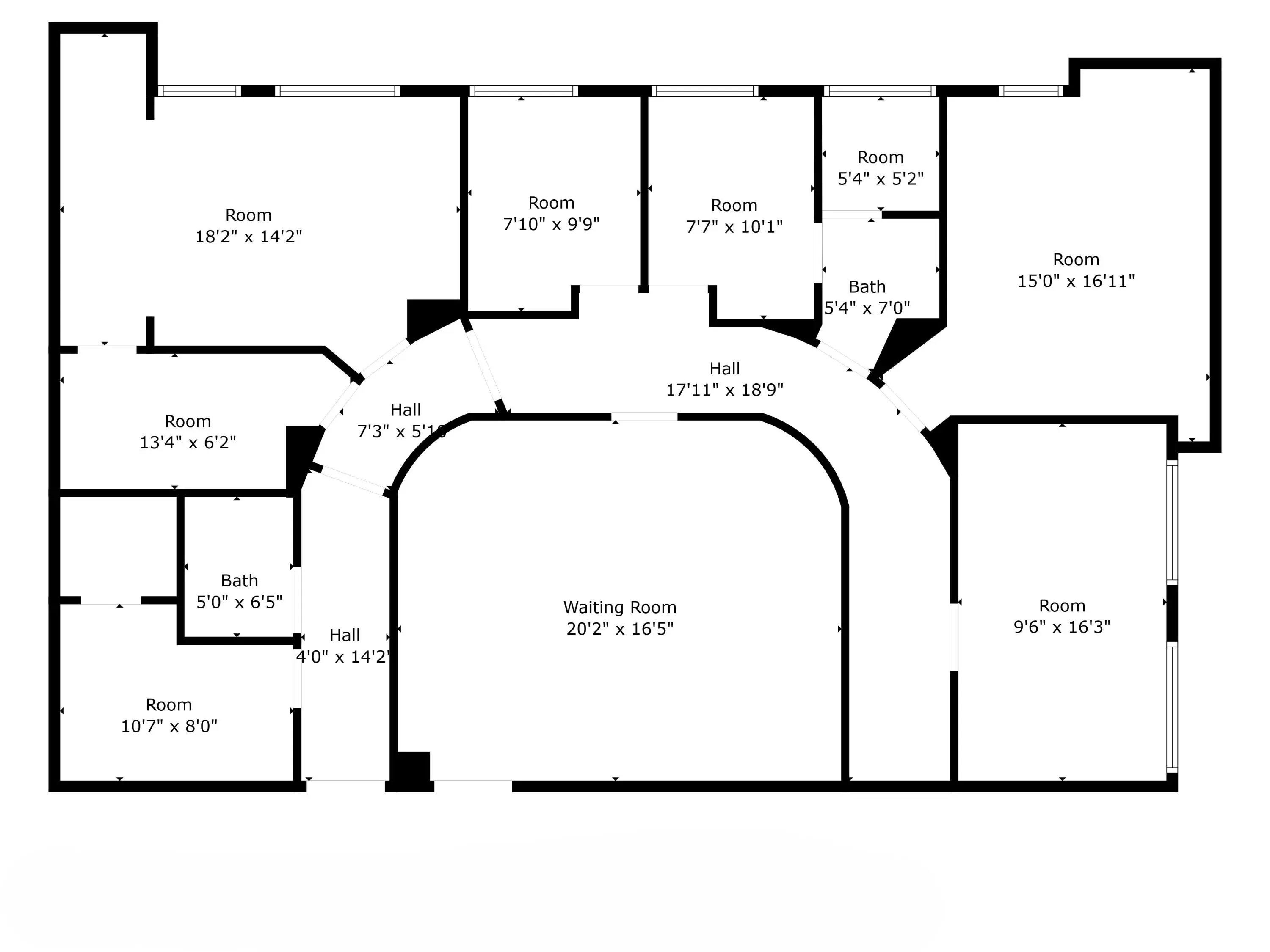
PLUG-AND-PLAY MEDICAL SUITE | 2026 RENOVATION | SECONDS FROM HCA WESTSIDE. Skip the 12-month build-out & move into this hyper-efficient facility engineered for maximum patient throughput. Located at 150 NW 70th Ave, this suite offers unparalleled proximity to HCA Florida Westside Hospital, making it a premier destination for physician referrals. THE LAYOUT: 7 oversized exam rooms/offices, 2 private restrooms (1 ADA), and a light-filled, modern reception designed for high-volume intake. THE ADVANTAGE: 2026 designer finishes, brand-new infrastructure, and abundant natural light. Fully wheelchair accessible with elevator access and 60+ on-site parking spaces. Perfect for Specialists, Primary Care, or Med-Spa. Stop building and start treating—move-in ready today!

Essential Information

  • MLS® #R11111911
  • Price$23
  • Bathrooms2.00
  • Acres0.75
  • Year Built1976
  • TypeCommercial Sale
  • Sub-TypeMixed Use
  • StatusActive

Community Information

  • Address150 Nw 70 Avenue #03
  • Area3760
  • CityPlantation
  • CountyBroward
  • StateFL
  • Zip Code33317

Interior

  • HeatingOther
  • CoolingOther

Exterior

  • RoofOther

Additional Information

  • Date ListedAugust 1st, 2025
  • Days on Website235
  • ZoningB-2P
  • Office: Pellego, Llc

Property Location

Please provide a valid email address.

150 Nw 70 Avenue #03 on www.jupiterabacoahomes.uswww.jupiterabacoahomes.us

Offered at the current list price of $23, this home for sale at 150 Nw 70 Avenue #03 features bedrooms and 2 bathrooms. This real estate listing is located in of Plantation, FL 33317 . 150 Nw 70 Avenue #03 is listed under the MLS ID of R11111911 and has been available through www.jupiterabacoahomes.uswww.jupiterabacoahomes.us for the Plantation real estate market for 235 days.

All listings featuring the BMLS logo are provided by Beaches MLS Inc. Copyright 2026 Beaches MLS. This information is not verified for authenticity or accuracy and is not guaranteed.
© 2026 Beaches Multiple Listing Service, Inc. All rights reserved.

Listing information last updated on March 31st, 2026 at 7:16am CDT.