1. Home
  2. Search Listings
  3. 101 Se Martin Luther King Jr Boulevard Stuart, FL - 34994
  • MLS® #: R11108105
  • 101 Se Martin Luther King Jr Boulevard
  • Stuart, FL 34994
  • $1,299,000
  • 2 Bath, 0.15 Acres
  • Commercial Sale

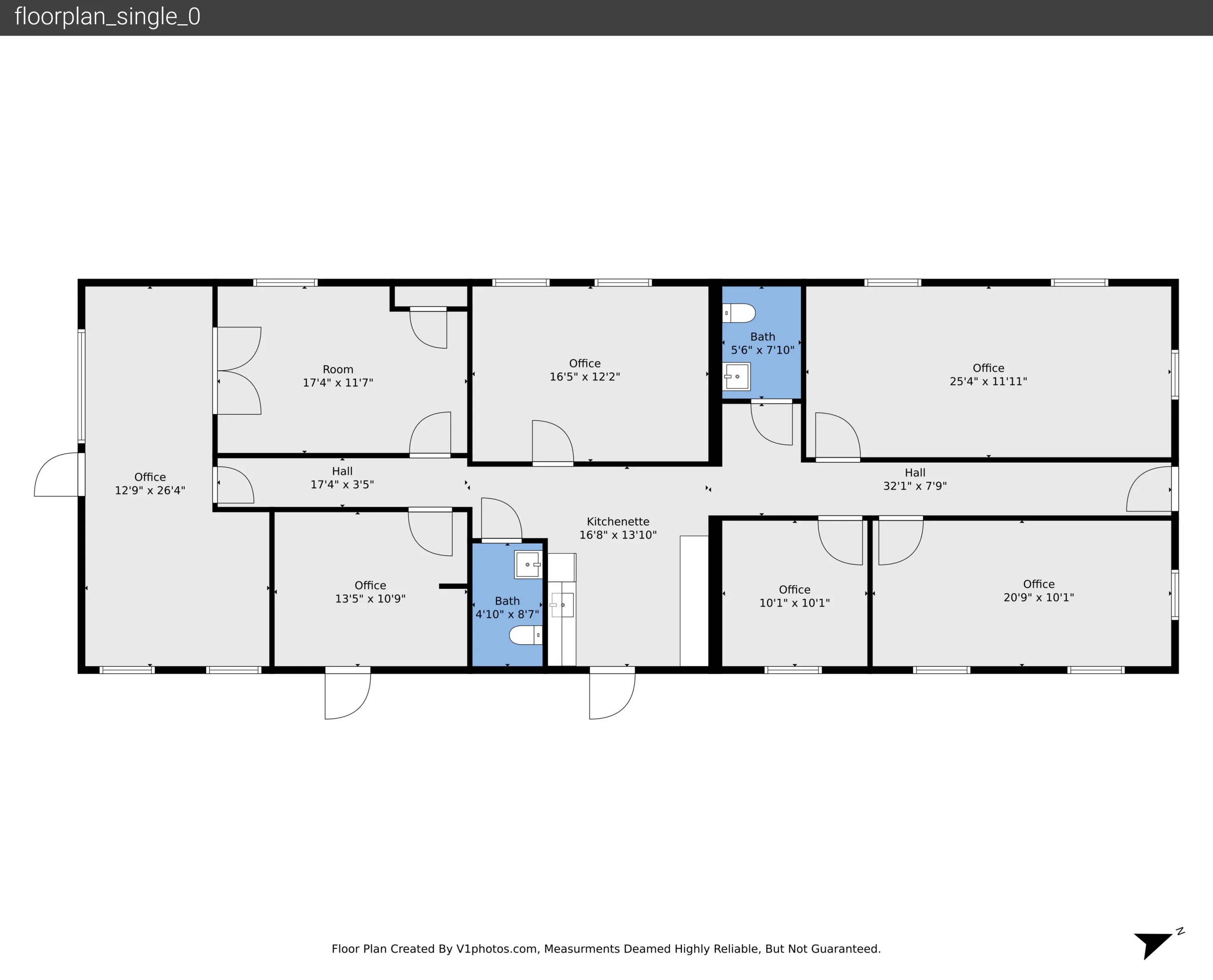
See additional remarks... Prime Office Space in Downtown Stuart , High Visibility & Modern Renovation This impressive commercial property boasts excellent visibility with dual street frontage and prominent monument signage, ensuring your business stands out. The exterior is beautifully maintained, while the fully renovated interior offers a turnkey professional environment. Inside, you'll find updated flooring throughout, multiple private offices, a welcoming reception area, a spacious conference room, two restrooms, and a generous kitchenette, perfect for hosting clients or team collaboration. Located just minutes from the Martin County Courthouse, this property is ideal for law firms, financial services, or any business seeking a strong presence in the vibrant heart of downtown Stuart. Enjoy easy access to nearby dining, shopping, and major transportation routes. Call today for your private tour!!

Essential Information

  • MLS® #R11108105
  • Price$1,299,000
  • Bathrooms2.00
  • Acres0.15
  • Year Built1988
  • TypeCommercial Sale
  • Sub-TypeOffice
  • StatusActive

Community Information

  • CityStuart
  • CountyMartin
  • StateFL
  • Zip Code34994

Address

101 Se Martin Luther King Jr Boulevard

Area

6080 - Stuart - North of Indian St

Amenities

  • UtilitiesCable Available

Interior

  • HeatingCentral, Electric
  • CoolingCentral Air, Electric

Exterior

  • RoofMetal
  • ConstructionBlock, Stucco

Additional Information

  • Date ListedNovember 20th, 2025
  • Days on Website122
  • ZoningCM
  • Office: Atlantic Shores Era Powered

Property Location

Please provide a valid email address.

101 Se Martin Luther King Jr Boulevard on www.jupiterabacoahomes.uswww.jupiterabacoahomes.us

Offered at the current list price of $1,299,000, this home for sale at 101 Se Martin Luther King Jr Boulevard features bedrooms and 2 bathrooms. This real estate listing is located in of Stuart, FL 34994 . 101 Se Martin Luther King Jr Boulevard is listed under the MLS ID of R11108105 and has been available through www.jupiterabacoahomes.uswww.jupiterabacoahomes.us for the Stuart real estate market for 122 days.

Facts About Stuart, FL

B&A Flea Market is a fantastic eclectic street bizarre that has been in existence in Stuart Beach for over two decades.  If you are looking for a fun day of shopping and sun make sure to visit this Stuart Beach staple.

Some great local Stuart landmarks incluse the Lyric Theatre, the House of Refuge and the Elliot Museum

Stuart Beach is renowned for its diligent and well trained lifeguards mixed with the fantastic surf the area has it makes Stuart an excellent place to learn how to surf.

All listings featuring the BMLS logo are provided by Beaches MLS Inc. Copyright 2026 Beaches MLS. This information is not verified for authenticity or accuracy and is not guaranteed.
© 2026 Beaches Multiple Listing Service, Inc. All rights reserved.

Listing information last updated on March 22nd, 2026 at 12:03pm CDT.