1. Home
  2. Search Listings
  3. 109 W 14th Street Riviera Beach, FL - 33404
  • MLS® #: R11099262
  • 109 W 14th Street
  • Riviera Beach, FL 33404
  • $1,080,000
  • 0.41 Acres
  • Land & Docks

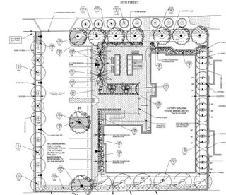
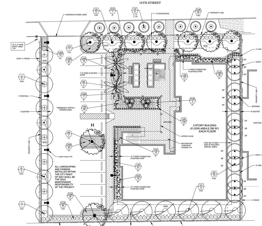
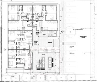
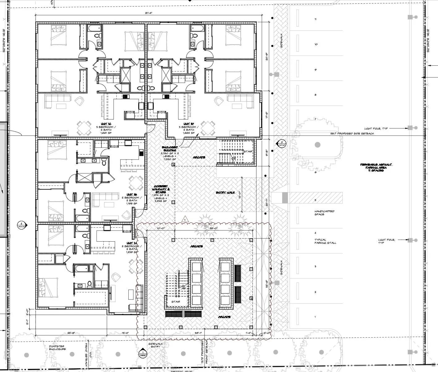
Turnkey Multifamily Development | Site Plan Approved | Permit Package Ready 109, 117 & 125 W 14th St, Riviera Beach, FL 33404. A rare, shovel-ready multifamily opportunity in the thriving redevelopment zone of Riviera Beach. This three-parcel assemblage is fully entitled and comes with a permit Submittal ready construction package, ideal for investors or developers seeking a ready to go development. The project consists of a two-story, 8-unit building featuring modern layouts and a strategic mix of unit types perfectly aligned with rental market demand. Total Units: 8 - (4) Three-Bedroom / Two-Bath Units (~$3,260 Market | $2,860 HCV) - (4) Two-Bedroom / Two-Bath Units (~$2,420 Market | $2,190 HCV)- Parking: 11 Off-Street Spaces. Total Rentable SF (Estimated): ~9,600 SF. Land Size: Approx. 0.41 Acres Key Location Drivers: Marina Village Expansion: $375M+ revitalization of Riviera Beach Marina District including mixed-use, retail, hotel, and residential. Oculina Bank Headquarters Project: Major commercial redevelopment just blocks away, creating employment and foot traffic. Strategic Proximity: Port of Palm Beach, US-1, Blue Heron Blvd, I-95, and major employment nodes. Exit Strategies: Build-to-Rent with strong cash flow via market or voucher leasing Build-and-sell to institutional buyer at stabilization (6-7.5% cap rate) Condo exit potential with individual unit sales post-CO Offering Details: Sale Price: $1,080,000 Delivery: As-Is, Site Plan Approved with Permit Package Ready for Submital Zoning: Multifamily Residential Utilities: Accessible and Available

Essential Information

  • MLS® #R11099262
  • Price$1,080,000
  • Acres0.41
  • TypeLand & Docks
  • Sub-TypeUnimproved Land
  • StatusActive

Community Information

  • Address109 W 14th Street
  • Area5280
  • SubdivisionRIVIERA IN PB 2
  • CityRiviera Beach
  • CountyPalm Beach
  • StateFL
  • Zip Code33404

Additional Information

  • Date ListedJune 13th, 2025
  • Days on Website284
  • ZoningOP(cit
  • Office: Touchstone-webb Realty Co.

Property Location

Please provide a valid email address.

109 W 14th Street on www.jupiterabacoahomes.uswww.jupiterabacoahomes.us

Offered at the current list price of $1,080,000, this home for sale at 109 W 14th Street features bedrooms and 0 bathrooms. This real estate listing is located in RIVIERA IN PB 2 of Riviera Beach, FL 33404 . 109 W 14th Street is listed under the MLS ID of R11099262 and has been available through www.jupiterabacoahomes.uswww.jupiterabacoahomes.us for the Riviera Beach real estate market for 284 days.

All listings featuring the BMLS logo are provided by Beaches MLS Inc. Copyright 2026 Beaches MLS. This information is not verified for authenticity or accuracy and is not guaranteed.
© 2026 Beaches Multiple Listing Service, Inc. All rights reserved.

Listing information last updated on March 26th, 2026 at 2:59am CDT.