1. Home
  2. Search Listings
  3. 20826 Sw 85th Place Cutler Bay, FL - 33189
  • MLS® #: F10555128
  • 20826 Sw 85th Place
  • Cutler Bay, FL 33189
  • $299,999
  • 0.16 Acres
  • Land & Docks

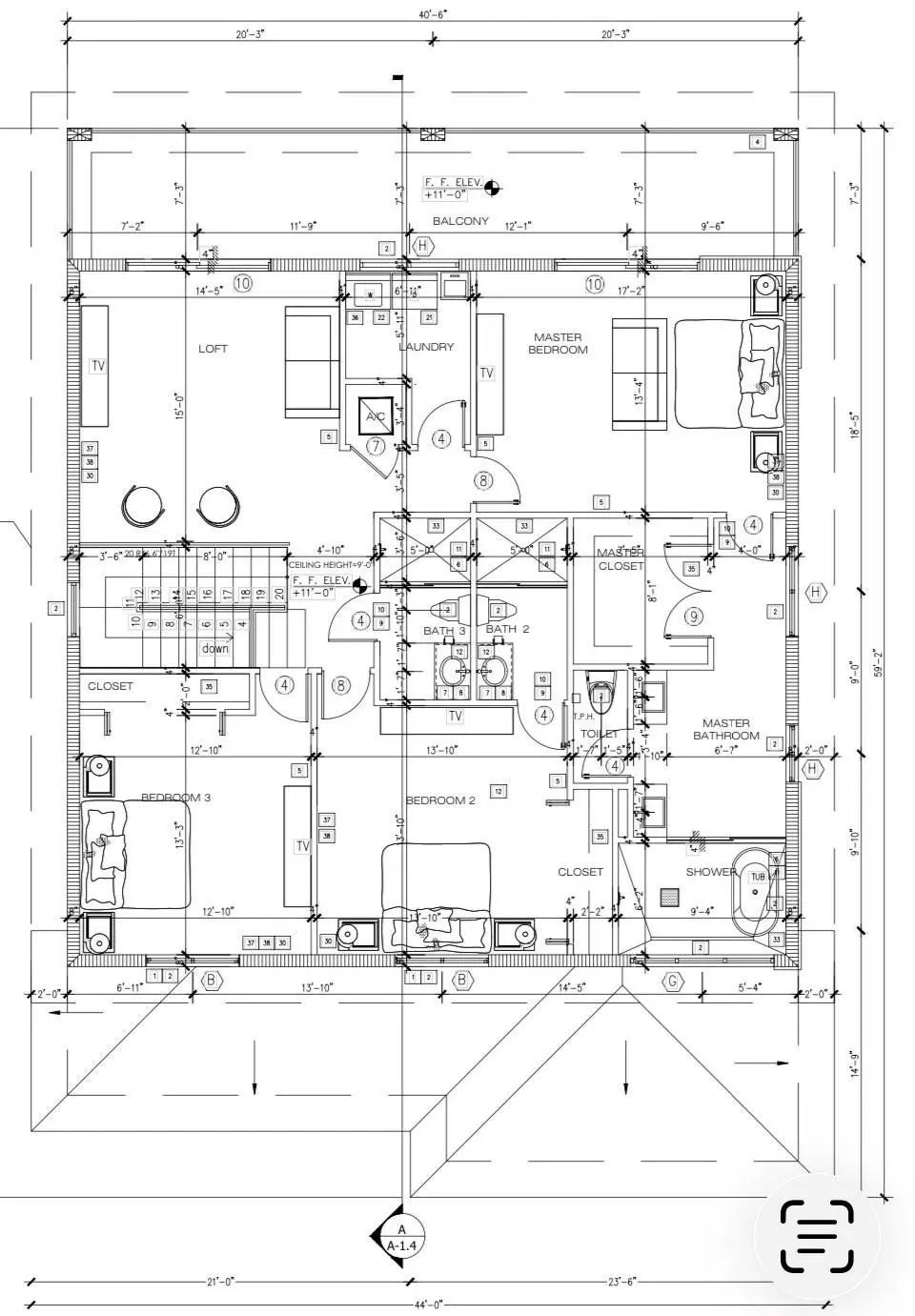
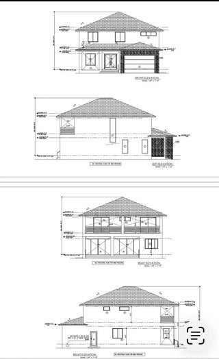
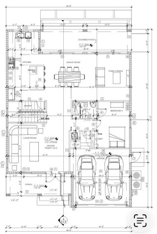
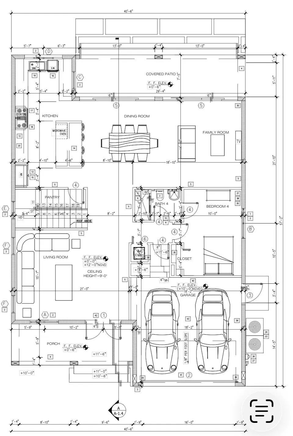
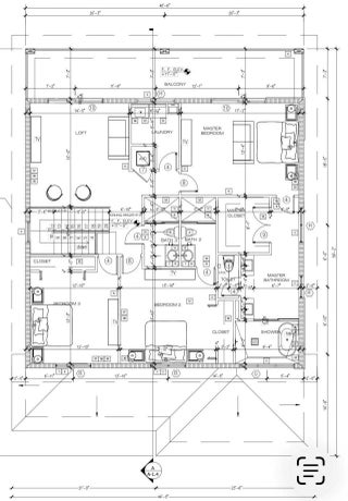
Build your custom home on this lakefront lot in desirable Cutler Bay. Sale comes with architectural plans for aproposed 4-bed, 4-bath single-family home with a 2-car garage, or buyer may choose to design and/or buildtheir own custom home, subject to zoning and permitting. Close to dining, parks & marina. Buyer to verifyzoning /building requirements. Sale includes land & plans only.

Essential Information

  • MLS® #F10555128
  • Price$299,999
  • Acres0.16
  • TypeLand & Docks
  • Sub-TypeUnimproved Land
  • StatusActive

Community Information

  • Address20826 Sw 85th Place
  • Area2600
  • SubdivisionCentennial Sec 02
  • CityCutler Bay
  • CountyMiami-Dade
  • StateFL
  • Zip Code33189

Amenities

  • UtilitiesUnderground Utilities
  • ViewLake
  • Is WaterfrontYes
  • WaterfrontOther, Lake Front

Exterior

  • Lot DescriptionCleared, Build to Suit

School Information

  • ElementaryDr. Edward L. Whigham
  • MiddleCutler Bay Middle
  • HighMiami Southridge

Additional Information

  • Date ListedFebruary 26th, 2026
  • Days on Website20
  • Zoning0100
  • Office: Blue Lighthouse Realty, Inc

Property Location

Please provide a valid email address.

20826 Sw 85th Place on www.jupiterabacoahomes.uswww.jupiterabacoahomes.us

Offered at the current list price of $299,999, this home for sale at 20826 Sw 85th Place features bedrooms and 0 bathrooms. This real estate listing is located in Centennial Sec 02 of Cutler Bay, FL 33189 . 20826 Sw 85th Place is listed under the MLS ID of F10555128 and has been available through www.jupiterabacoahomes.uswww.jupiterabacoahomes.us for the Cutler Bay real estate market for 20 days.

All listings featuring the BMLS logo are provided by Beaches MLS Inc. Copyright 2026 Beaches MLS. This information is not verified for authenticity or accuracy and is not guaranteed.
© 2026 Beaches Multiple Listing Service, Inc. All rights reserved.

Listing information last updated on March 18th, 2026 at 9:59pm CDT.