1. Home
  2. Search Listings
  3. 15 Cayuga Road Sea Ranch Lakes, FL - 33308
  • MLS® #: F10550806
  • 15 Cayuga Road
  • Sea Ranch Lakes, FL 33308
  • $9,995,000
  • 5 Beds, 8 Bath, 8,156 SqFt
  • Residential

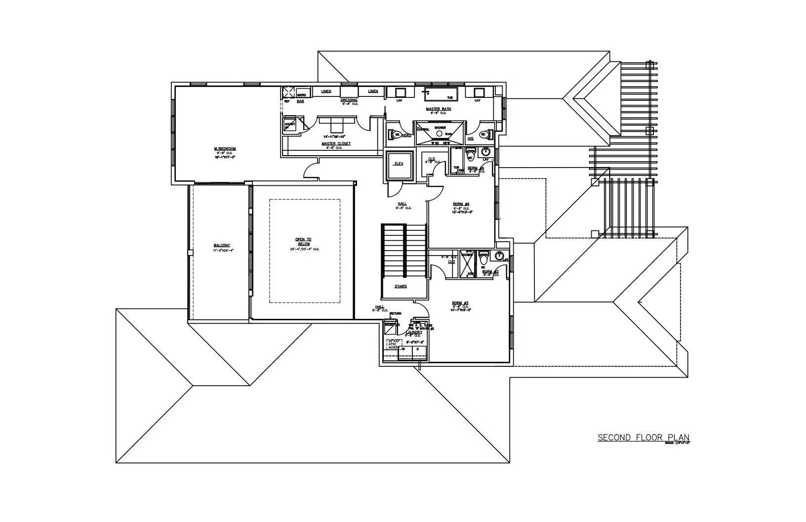
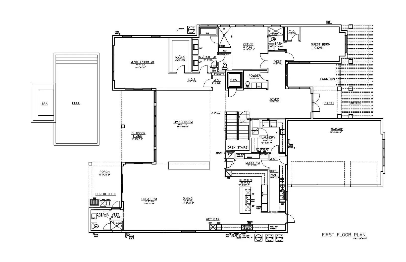
Sophisticated New Construction Coastal Contemporary Lakefront Estate in sought after Sea Ranch Lakes. High quality custom build within exclusive 24-hr guard-gated community with private beach club and communty pool. Home features Resort Style landscaping with pool and spa, luxurious outdoor spaces designed for family and entertaining with lakefront summer kitchen, covered patio. Home features 5 bedrooms, 5.5 baths including dual primary suites (1st & 2nd floors) with spa style bathrooms and generous bedroom suites with outdoor spaces. Two story living room with fireplace and expansive great room and dining featuring volume ceilings. Chef's kitchen with butler's pantry. Dual laundry rooms, air conditioned 3 bay garage. Completion July 2026. Still time to choose your finishes!

Essential Information

  • MLS® #F10550806
  • Price$9,995,000
  • Bedrooms5
  • Bathrooms8.00
  • Full Baths7
  • Half Baths1
  • Square Footage8,156
  • Year Built2026
  • TypeResidential
  • Sub-TypeSingle Family Residence
  • StatusActive

Community Information

  • Address15 Cayuga Road
  • Area3130
  • SubdivisionSea Ranch Lakes 40-29 B
  • CitySea Ranch Lakes
  • CountyBroward
  • StateFL
  • Zip Code33308

Amenities

  • UtilitiesCable Available
  • # of Garages3
  • ViewPool, Lake
  • Is WaterfrontYes
  • WaterfrontNone, Lake Front
  • Has PoolYes

Amenities

Clubhouse, Spa/Hot Tub, Beach Club Available, Gated

Parking

Driveway, Garage Door Opener, Paver Block, Garage, Attached Garage, Attached

Pool

Gunite, Heated, In Ground, Salt Water, Child Gate

Interior

  • HeatingCentral, Electric
  • CoolingCentral Air
  • FireplaceYes
  • # of Stories2
  • StoriesTwo

Interior Features

Bar, Built-in Features, High Ceilings, Walk-In Closet(s)

Appliances

Electric Water Heater, Dryer, Disposal, Dishwasher, Electric Range, Gas Range, Ice Maker, Microwave, Oven, Refrigerator, Water Heater, Water Purifier, Water Softener, Washer

Exterior

  • Exterior FeaturesBuilt-in Barbecue, Balcony
  • WindowsSliding
  • RoofMetal
  • ConstructionCBS

Additional Information

  • Date ListedFebruary 7th, 2026
  • Days on Website44
  • ZoningR-1
  • HOA Fees1025
  • HOA Fees Freq.Quarterly
  • Office: Blake Development Corporation

Property Location

Please provide a valid email address.

15 Cayuga Road on www.jupiterabacoahomes.uswww.jupiterabacoahomes.us

Offered at the current list price of $9,995,000, this home for sale at 15 Cayuga Road features 5 bedrooms and 8 bathrooms. This real estate listing is located in Sea Ranch Lakes 40-29 B of Sea Ranch Lakes, FL 33308 and is approximately 8,156 square feet. 15 Cayuga Road is listed under the MLS ID of F10550806 and has been available through www.jupiterabacoahomes.uswww.jupiterabacoahomes.us for the Sea Ranch Lakes real estate market for 44 days.

Similar Listings to 15 Cayuga Road

Photo of Listing #F10526255
  • MLS® #: F10526255
  • 19 Gatehouse Road
  • Sea Ranch Lakes, FL 33308
  • $11,990,000
  • 5 Bed, 7 Bath, 7,143 SqFt
  • Residential
Add as Favorite

All listings featuring the BMLS logo are provided by Beaches MLS Inc. Copyright 2026 Beaches MLS. This information is not verified for authenticity or accuracy and is not guaranteed.
© 2026 Beaches Multiple Listing Service, Inc. All rights reserved.

Listing information last updated on March 23rd, 2026 at 7:48am CDT.