1. Home
  2. Search Listings
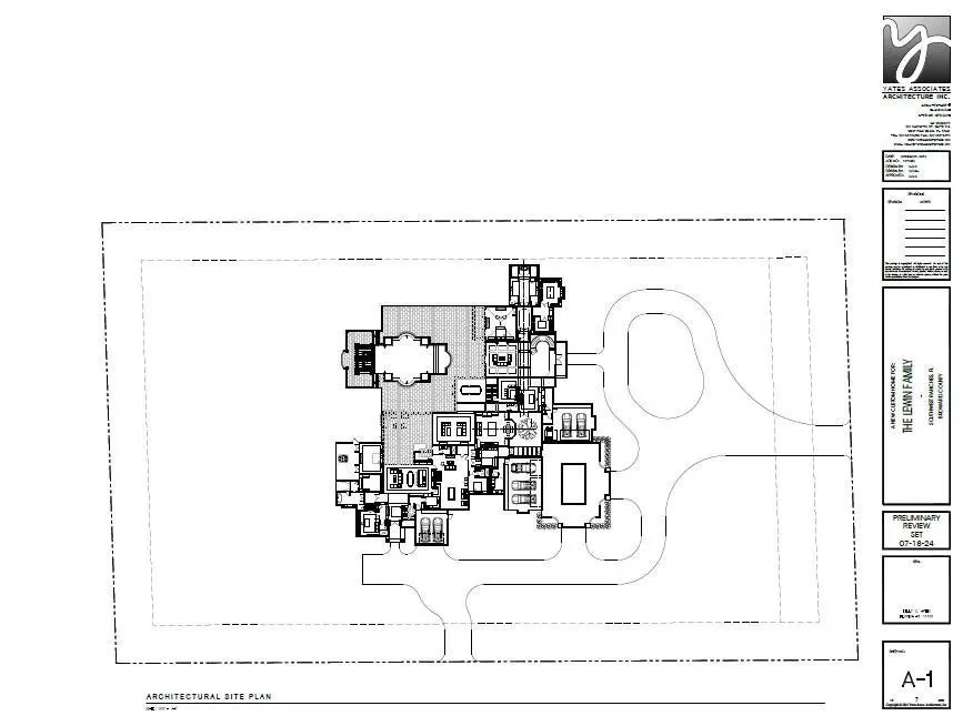
  3. 6541 Melaleuca Road Southwest Ranches, FL - 33330
  • MLS® #: F10543145
  • 6541 Melaleuca Road
  • Southwest Ranches, FL 33330
  • $3,750,000
  • 3.25 Acres
  • Land & Docks

BUILD your Custom Home on the most beautiful lot in Southwest Ranches! This exceptional 3.25-acre corner lot, perfectly positioned at Melaleuca Road and Luray Road, offers a perfect canvas for your dream estate. Enter through a private, gated entrance framed by majestic mature oaks, setting the tone for the exclusivity. Located in Broward County’s most coveted and fastest-growing luxury enclave—home to elite athletes, entertainers, and top-tier executives. Unlike most parcels in the area, this property has been upgraded with city water access—saving time and expense. Architectural and engineering plans for a custom estate are available to qualified purchasers.

Essential Information

  • MLS® #F10543145
  • Price$3,750,000
  • Acres3.25
  • TypeLand & Docks
  • Sub-TypeUnimproved Land
  • StatusActive

Community Information

  • Address6541 Melaleuca Road
  • Area3200
  • SubdivisionEverglades Sugar & Land C
  • CitySouthwest Ranches
  • CountyBroward
  • StateFL
  • Zip Code33330

Additional Information

  • Date ListedJanuary 2nd, 2026
  • Days on Website79
  • ZoningRR
  • Office: Native Realty Co.

Property Location

Please provide a valid email address.

6541 Melaleuca Road on www.jupiterabacoahomes.uswww.jupiterabacoahomes.us

Offered at the current list price of $3,750,000, this home for sale at 6541 Melaleuca Road features bedrooms and 0 bathrooms. This real estate listing is located in Everglades Sugar & Land C of Southwest Ranches, FL 33330 . 6541 Melaleuca Road is listed under the MLS ID of F10543145 and has been available through www.jupiterabacoahomes.uswww.jupiterabacoahomes.us for the Southwest Ranches real estate market for 79 days.

Similar Listings to 6541 Melaleuca Road

Photo of Listing #F10512341
  • MLS® #: F10512341
  • 12840 Luray Road
  • Southwest Ranches, FL 33330
  • $3,499,000
  • 4.7 Acres
  • Land & Docks
Add as Favorite
Photo of Listing #F10505323
  • MLS® #: F10505323
  • 66 Sw Sw Street
  • Southwest Ranches, FL 33331
  • $3,000,000
  • 10 Acres
  • Land & Docks
Add as Favorite
Photo of Listing #F10512417
  • MLS® #: F10512417
  • 6301 Appaloosa Trail
  • Southwest Ranches, FL 33330
  • $4,499,900
  • 4.85 Acres
  • Land & Docks
Add as Favorite
Photo of Listing #F10528750
  • MLS® #: F10528750
  • 14390 Mustang Trail
  • Southwest Ranches, FL 33330
  • $4,449,000
  • 4.69 Acres
  • Land & Docks
Add as Favorite

All listings featuring the BMLS logo are provided by Beaches MLS Inc. Copyright 2026 Beaches MLS. This information is not verified for authenticity or accuracy and is not guaranteed.
© 2026 Beaches Multiple Listing Service, Inc. All rights reserved.

Listing information last updated on March 22nd, 2026 at 9:02pm CDT.