1. Home
  2. Search Listings
  3. 1085 Center Stone Lane Riviera Beach, FL - 33404
  • MLS® #: F10542578
  • 1085 Center Stone Lane
  • Riviera Beach, FL 33404
  • $620,000
  • 5 Beds, 4 Bath, 3,052 SqFt
  • Residential

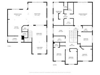
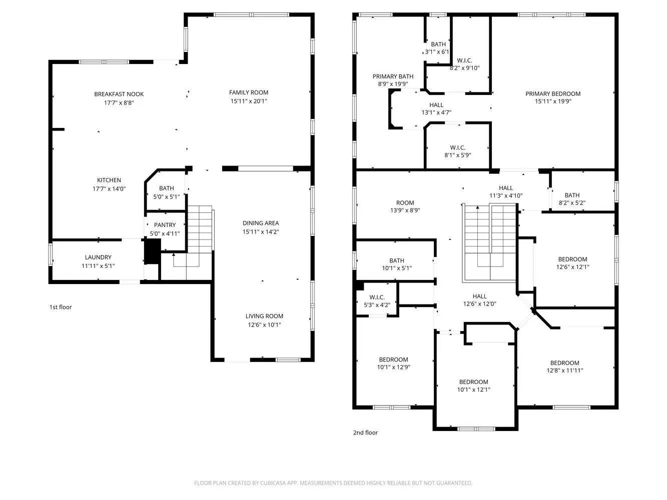
Welcome to this elegant 3,000+ sq ft home in the sought-after Thousand Oaks community of Riviera Beach. This spacious 5-bedroom, 3.5-bath residence offers an open floor plan filled with natural light. The main level features a large kitchen flowing into the family room and breakfast area. Upstairs, dark wood floors lead to a den and generously sized bedrooms. The oversized primary suite includes dual walk-in closets and a spa-style bath with separate his-and-hers vanities. Enjoy a private fenced backyard with stone patio and in-ground pool. 2-car garage plus extended driveway. Resort-style amenities include pool, gym, tennis, basketball, and playground. Close to shopping, dining, and major highways.

Essential Information

  • MLS® #F10542578
  • Price$620,000
  • Bedrooms5
  • Bathrooms4.00
  • Full Baths3
  • Half Baths1
  • Square Footage3,052
  • Year Built2005
  • TypeResidential
  • Sub-TypeSingle Family Residence
  • StatusActive

Community Information

  • Address1085 Center Stone Lane
  • Area5280
  • SubdivisionThousand Oaks
  • CityRiviera Beach
  • CountyPalm Beach
  • StateFL
  • Zip Code33404

Amenities

  • # of Garages2
  • ViewGarden, Pool
  • Has PoolYes
  • PoolIn Ground

Amenities

Clubhouse, Fitness Center, Playground, Pool, Maintained Community, Gated

Parking

Covered, Garage Door Opener, Paver Block

Interior

  • HeatingCentral
  • CoolingCentral Air
  • FireplaceYes
  • # of Stories2
  • StoriesTwo

Interior Features

Vaulted Ceiling(s), Walk-In Closet(s)

Appliances

Dryer, Disposal, Dishwasher, Gas Range, Oven, Refrigerator, Water Heater, Water Purifier, Water Softener, Washer

Exterior

  • Exterior FeaturesBalcony
  • RoofOther
  • ConstructionCBS

School Information

  • MiddleJohn F. Kennedy (Palm Beach)
  • HighPalm Beach Gardens

Additional Information

  • Date ListedDecember 28th, 2025
  • Days on Website85
  • ZoningR-PUD
  • HOA Fees267
  • HOA Fees Freq.Monthly
  • Office: Exp Realty

Property Location

Please provide a valid email address.

1085 Center Stone Lane on www.jupiterabacoahomes.uswww.jupiterabacoahomes.us

Offered at the current list price of $620,000, this home for sale at 1085 Center Stone Lane features 5 bedrooms and 4 bathrooms. This real estate listing is located in Thousand Oaks of Riviera Beach, FL 33404 and is approximately 3,052 square feet. 1085 Center Stone Lane is listed under the MLS ID of F10542578 and has been available through www.jupiterabacoahomes.uswww.jupiterabacoahomes.us for the Riviera Beach real estate market for 85 days.

Similar Listings to 1085 Center Stone Lane

Photo of Listing #R11151554
  • MLS® #: R11151554
  • 1004 Center Stone Lane
  • Riviera Beach, FL 33404
  • $589,800
  • 4 Bed, 3 Bath, 2,689 SqFt
  • Residential
Add as Favorite
Photo of Listing #R11158166
  • MLS® #: R11158166
  • 1222 Rose Gate Boulevard
  • Riviera Beach, FL 33404
  • $665,000
  • 4 Bed, 3 Bath, 2,689 SqFt
  • Residential
Add as Favorite
Photo of Listing #R11149799
  • MLS® #: R11149799
  • 1412 W 27th Street
  • Riviera Beach, FL 33404
  • $550,000
  • 6 Bed, 4 Bath, 2,596 SqFt
  • Residential
Add as Favorite
Photo of Listing #R11164262
  • MLS® #: R11164262
  • 7021 Galleon Cove
  • Riviera Beach, FL 33418
  • $549,000
  • 4 Bed, 3 Bath, 2,139 SqFt
  • Residential
Add as Favorite

All listings featuring the BMLS logo are provided by Beaches MLS Inc. Copyright 2026 Beaches MLS. This information is not verified for authenticity or accuracy and is not guaranteed.
© 2026 Beaches Multiple Listing Service, Inc. All rights reserved.

Listing information last updated on March 23rd, 2026 at 9:02am CDT.