1. Home
  2. Search Listings
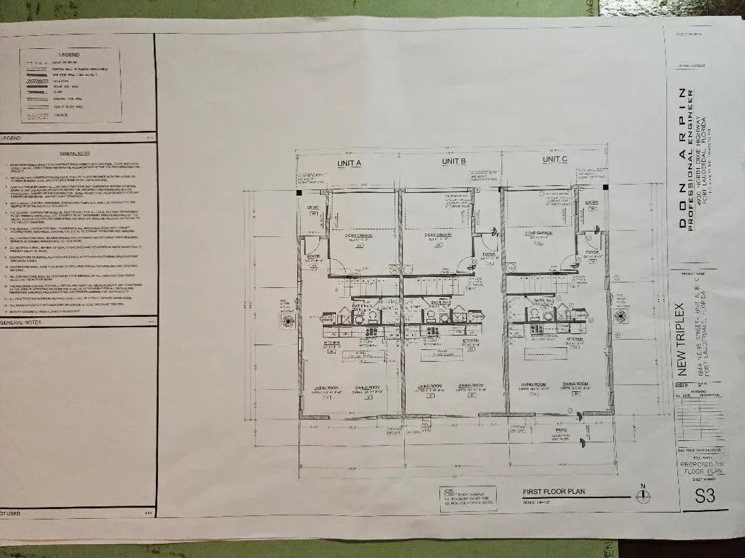
  3. 1844 Ne 46th Street Fort Lauderdale, FL -
  • MLS® #: B26004390
  • 1844 Ne 46th Street
  • Fort Lauderdale, FL
  • $790,000
  • Business Opportunity

This is an idea that can be done on this property - DEVELOPER OPPORTUNITY - Using 3 existing Walls' & Slab for the new construction of a (3) Three Unit (2) two story, 1760 square feet, gross plans, negotiable, Townhomes with attached Garages. WILLING TO SELL PROPERTY TO DEVELOPER, The plans that we have on the site is a sample of what can be done on the property. You would be pulling the permit for the City of Fort Lauderdale. I am a Structural Engineer, that can do all the plans for the City, plus the demo plans. This is an idea that can be done on this property - DEVELOPER OPPORTUNITY - Using 3 existing Walls' & Slab for the new construction of a (3) Three Unit (2) two story, 1760 square feet, gross plans, negotiable, Townhomes with attached Garages. WILLING TO SELL PROPERTY TO DEVELOPER, The plans that we have on the site is a sample of what can be done on the property. You would be pulling the permit for the City of Fort Lauderdale. I am a Structural Engineer, that can do all the plans for the City, plus the demo plans.

Essential Information

  • MLS® #B26004390
  • Price$790,000
  • Year Built1958
  • TypeBusiness Opportunity
  • Sub-TypeBusiness
  • StatusActive

Community Information

  • Address1844 Ne 46th Street
  • Area3360
  • CityFort Lauderdale
  • CountyBroward
  • StateFL

Amenities

  • ParkingGuest, Common, Free

Utilities

Cable Available, Electricity Available, Natural Gas Available, Phone Available, Sewer Connected, Water Available

Interior

  • HeatingNone
  • # of Stories1

Cooling

Ceiling Fan(s), Gas, Wall/Window Unit(s)

Exterior

  • Lot DescriptionOversized Lot
  • RoofShingle

Construction

CBS, Concrete Block - With Stucco

Additional Information

  • Date ListedMarch 19th, 2026
  • Days on Website23
  • ZoningRMM-25
  • RE / Bank OwnedYes
  • Office: A American Capital Leasing Inc

Property Location

Please provide a valid email address.

1844 Ne 46th Street on www.jupiterabacoahomes.uswww.jupiterabacoahomes.us

Offered at the current list price of $790,000, this home for sale at 1844 Ne 46th Street features bedrooms and 0 bathrooms. This real estate listing is located in of Fort Lauderdale, FL . 1844 Ne 46th Street is listed under the MLS ID of B26004390 and has been available through www.jupiterabacoahomes.uswww.jupiterabacoahomes.us for the Fort Lauderdale real estate market for 23 days.

All listings featuring the BMLS logo are provided by Beaches MLS Inc. Copyright 2026 Beaches MLS. This information is not verified for authenticity or accuracy and is not guaranteed.
© 2026 Beaches Multiple Listing Service, Inc. All rights reserved.

Listing information last updated on April 11th, 2026 at 3:59am CDT.